Nowe mieszkanie na sprzedaż 3 pokoje Kraków Prądnik Biały, 102,70 m2, 2 piętro - nr B32
Oferta sprzedaży od Imperial Capital
Kraków, Prądnik Biały, ul. Stawowa 158 (5,4km od centrum Krakowa)

Główne cechy mieszkania
Ważne informacje
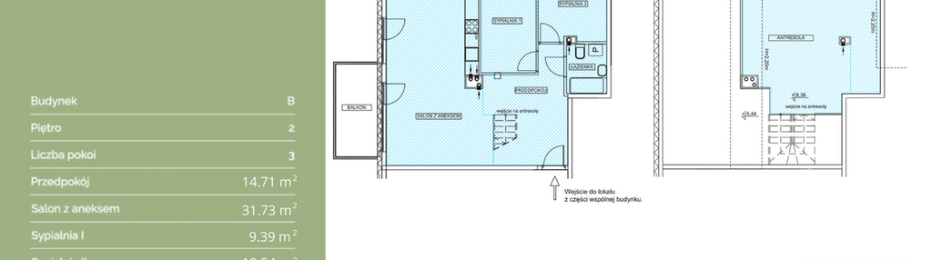
Mieszkanie 3 pokojowe
Dodatkowe informacje
Udogodnienia

Winda
Inwestycja
Stawowa Residence - etap V
małopolskie, Kraków, Prądnik Biały
Odkryj harmonię życia w sercu zielonych Bronowic Stawowa Residence Etap V to kameralne osiedle zrealizowane przez Imperial Capital, które łączy nowoczesną architekturę z funkcjonalnością i bliskością natury. Trzy niewysokie budynki wyróżniają się neomodernistyczną bryłą z dużymi przeszkleniami i zielonymi dachami, tworząc estetyczne i komfortowe środowisko do życia. Mieszkania antresolami dają duże możliwości aranżacyjne oraz zapewniają naturalny podział przestrzeni na dwie strefy. Inwestycja została wybudowana i oddana do użytkowania w II kw. 2025 roku. Cały projekt obejmuje 48 nowych mieszkań rozlokowanych w 3 budynkach, z 3 kondygnacjami naziemnymi i 1 podziemną. Nowoczesna architektura: ● Trzy niewysokie budynki o atrakcyjnej neomodernistycznej bryle. ● Duże przeszklenia zapewniające optymalne doświetlenie wnętrz. ● Zielone dachy, wpisujące się w ekologiczny charakter osiedla. Komfort i udogodnienia: ● Dwupiętrowe budynki wyposażone w windy z dostępem do garażu podziemnego. ● Reprezentacyjne klatki schodowe, podkreślające estetykę inwestycji. ● Podziemny garaż na 53 miejsca postojowe. ● Dostępne również miejsca postojowe naziemne. ● Wspólna strefa rekreacyjna dla mieszkańców. ● Komórki lokatorskie o wielkości od 1,73 do 2,5 m² – idealne do przechowywania. Różnorodność mieszkań: ● 11 dostępnych mieszkań o powierzchni od 55 do 99 m². ● Szeroki wybór metraży i układów, dopasowanych do różnorodnych potrzeb. ● Idealne zarówno dla singli, par, jak i rodzin z dziećmi. Spokojna lokalizacja: ● Zaciszne położenie bez lokali usługowych w budynku, co gwarantuje niczym niezakłócony spokój i komfortowy wypoczynek. ● Doskonała propozycja dla osób szukających wytchnienia od miejskiego zgiełku. Inwestycja Stawowa Residence Etap V znajduje się na Bronowicach, przy ul. Stawowej 158, zaledwie 5,4 km od centrum Krakowa. To położenie łączy zacisze zielonej okolicy z szybkim dostępem do kluczowych punktów miasta.
Dostępne mieszkania w tej inwestycji
| Nazwa | Rzut | Pokoje | Powierzchnia | Piętro | Cena | Status |