Nowe mieszkanie na sprzedaż 4 pokoje Kraków Prądnik Biały, 93,90 m2, 5 piętro - nr 49
Oferta sprzedaży od YIT Development Sp. z o.o.
Kraków, Prądnik Biały, ul. Stefana Banacha (4,4km od centrum Krakowa)

Główne cechy mieszkania
Ważne informacje
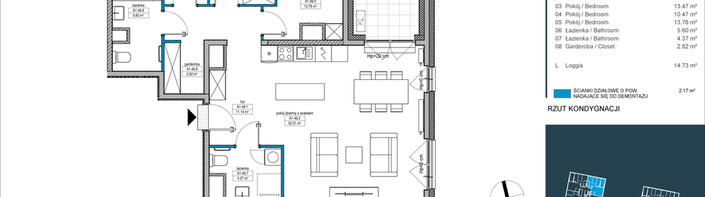
Mieszkanie 4 pokojowe
Dodatkowe informacje
Udogodnienia

Wózkarnia

Plac zabaw

Rowerownia

Winda
Inwestycja
Nordic Górka Narodowa
małopolskie, Kraków, Prądnik Biały
Nordic Górka Narodowa to inwestycja największego fińskiego dewelopera – YIT. Fiński design naszych inwestycji to dla nas oczywistość. Wybieramy jakościowe materiały i stawiamy na stylowy wygląd, by Twoje miejsce do życia było jednocześnie solidne, funkcjonalne i estetyczne. Elewacja budynków zostanie wykonana z ceglanych płytek. Wybierz mieszkanie o metrażu od 26,8 do 93,97 m2, które najlepiej odpowie na Twoje potrzeby. Lubisz widoki, od których trudno jest się oderwać? Pamiętaj, że dzięki lokalizacji na wzniesieniu z najwyższych pięter rozpościera się widok na panoramę Krakowa. Jeśli wyjątkowo cenisz sobie komfort, rozważ wybór mieszkania z możliwością instalacji sauny.
Dostępne mieszkania w tej inwestycji
| Nazwa | Rzut | Pokoje | Powierzchnia | Piętro | Cena | Status |