Nowe mieszkanie na sprzedaż 1 pokój Łódź Polesie, 43,61 m2, 6 piętro - nr 3.A.6.01
Oferta sprzedaży od Murapol Real Estate
Łódź, Polesie, Stare Polesie, ul. 6 Sierpnia (1,1km od centrum Łodzi)

Główne cechy mieszkania
Ważne informacje
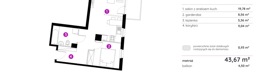
Mieszkanie 1 pokojowe
Dodatkowe informacje
Udogodnienia

Inteligentny dom

Plac zabaw
Inwestycja
Murapol Agosto
łódzkie, Łódź, Polesie, Stare Polesie
WYBRANE MIESZKANIA W PAKIECIE Z MIEJSCEM POSTOJOWYM W CENIE 15000 ZŁ- 77000 ZŁ I/LUB KOMÓRKĄ LOKATORSKĄ W CENIE 21440 ZŁ-48400 ZŁ . O SZCZEGÓŁY ZAPYTAJ DEWELOPERA. Murapol Agosto to unikatowy projekt mieszkaniowy realizowany w wyjątkowym zarówno architektonicznie, jak i historycznie kwartale łódzkiego śródmieścia. Inwestycja sąsiaduje między innymi z jednym z najcenniejszych zabytków architektury secesyjnej na świecie – willą Leopolda Kindermanna, wewnątrz której kryje się obecnie miejska galeria sztuki. Przemysłowa historia to nieodłączny element wielu łódzkich inwestycji, którego również nie zabrakło w przypadku Murapol Agosto. Ziemia ta na początku XX wieku należała do jednej z największych w owym czasie wytwórni mydła i kosmetyków Hugo Güttela oraz Józefa Wójtowicza. Fabryka znana była powszechnie pod nazwą Pixin czy też Pollena-Ewa, pod którą to firma funkcjonuje do dzisiaj. Starannie zaprojektowane budynki z wykorzystaniem wysokiej jakości materiałów, stonowanej kolorystyki oraz nowoczesnych zabiegów architektonicznych stanowią uzupełnienie pierzei ulicy Gdańskiej, w sposób harmonijny wpisując się w istniejącą tkankę miejską. Nie sposób pominąć również powstającej nieopodal olbrzymiej inwestycji kolejowej. Przystanek „Łódź Śródmieście” będący częścią tzw. łódzkiego metra pozwoli przyszłym mieszkańcom Murapol Agosto w zaledwie kilka minut dotrzeć na wschód, jak i zachód miasta. Stworzyliśmy to miejsce z myślą o osobach puszkujących ekscytujących wrażeń w centrum jednej z najprężniej rozwijających się metropolii w kraju. Kompaktowe oraz funkcjonalne układy 1-, 2-, 3-, 4- i 5-pokojowych mieszkań przekonają do siebie zarówno rodziny z dziećmi, singli, seniorów, jak i inwestorów pragnących uchronić swój kapitał przed inflacją. Zamieszkaj w Murapol Agosto i odkryj potencjał łódzkiego śródmieścia Home Management System pozwoli mieszkańcom korzystać z urządzeń smart home w swoich mieszkaniach, w tym sterować temperaturą, zaworami wody czy elektrycznością za pomocą aplikacji mobilnej. Pakiet antysmogowy jest w standardzie wszystkich mieszkań. Dzięki temu rozwiązaniu wnętrza są wolne od zanieczyszczeń powietrza, alergenów czy nawet owadów. Na wysoki standard wykończenia części wspólnych składają się m.in. trwałe gresy, dekoracyjne panele meblowe o drewnianej fakturze czy elegancki tynk mozaikowy. W holach wejściowych zaprojektowano ponadto duże lustra oraz estetyczne skrzynki pocztowe. Części wspólne są również wyposażone w energooszczędne oświetlenie LED, które wpłynie na niższe koszty utrzymania budynków. Wszystkie mieszkania dostępne na kondygnacjach parterowych otrzymują dodatkową plenerową przestrzeń w postaci tarasów wybrukowanych kostką z zielonymi ogródkami o powierzchni nawet 83 mkw. Wszystkie lokale mieszkalne na piętrach będą posiadać nawet dwa przestronne balkony lub loggie. Do części mieszkań wyższych kondygnacjach będą również przynależeć tarasy o powierzchni nawet 49 mkw. Duże i wysokie okna portfenetrowe zapewnią bardzo dobre nasłonecznienie mieszkań. W inwestycji zapewniono Komórki lokatorskie i boksy garażowe. Entuzjaści niskoemisyjnych środków transportu będą mieli dostęp do stacji ładowania samochodów elektrycznych oraz stojaków rowerowych. Dla wygody zmotoryzowanych mieszkańców przewidziano na terenie inwestycji optymalną liczbę miejsc w podziemnych halach garażowych oraz ogólnodostępne miejsca postojowe zewnętrzne. Na terenie zaprojektowano zielone nasadzenia, a dla najmłodszych lokatorów plac zabaw Osiedle zostanie podłączone do miejskiego węzła cieplnego
Dostępne mieszkania w tej inwestycji
| Nazwa | Rzut | Pokoje | Powierzchnia | Piętro | Cena | Status |