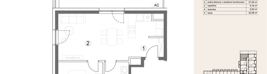
Nowe mieszkanie na sprzedaż 2 pokoje Łódź Polesie, 43,17 m2, 5 piętro - nr 126
Oferta sprzedaży od LP Group
Łódź, Polesie, Stare Polesie, ul. 28 Pułku Strzelców Kaniowskich 27-29 (1,5km od centrum Łodzi)

Główne cechy mieszkania
Ważne informacje
Mieszkanie 2 pokojowe
Dodatkowe informacje
Udogodnienia

Wózkarnia

Winda

Usługi w budynku

Sala fitness

Plac zabaw

Klimatyzacja

Inteligentny dom

Rowerownia
Przyroda

Park
Inwestycja
Waterlane Vibe
łódzkie, Łódź, Polesie, Stare Polesie
Waterlane Vibe to wyjątkowa inwestycja zlokalizowana przy ul. 28 Pułku Strzelców Kaniowskich. Lokalizację tę śmiało możemy nazwać wyprzedzającą aktualne rynkowe trendy. Inwestycja jest fantastycznym projektem, dedykowanym młodym ludziom, którzy chcą jak najwięcej czerpać z atrakcji jakie daje im miasto i życie z jego rytmem. Okolica jest przekształcona w najdłuższy łódzki Woonerf, miejską przestrzeń przyjazną mieszkańcom. Ograniczony ruch komunikacyjny, z pierwszeństwem ruchu pieszego i rowerowego. Miejsca do wypoczynku, rekreacji i zabaw z dziećmi, okraszone odrobiną miejskiej zieleni. A to wszystko w sercu Łodzi, tylko 15 minut pieszo od ulicy Piotrkowskiej. Ulica 28 Pułku Strzelców Kaniowskich ma bezkonkurencyjny potencjał wzrostu wartości nieruchomości w czasie, co czyni ją idealną inwestycją na przyszłość. W inwestycji będą dostępne trzy pomieszczenia wspólne: na 2 piętrze GymVibe czyli siłownia/fitness; na 4 piętrze FunVibe czyli strefa rozrywki; na 6 piętrze CoVibe czyli strefa pracy zdalnej. Wyjście z inwestycji bezpośrednio na odnowioną ulicę 28 Pułku Strzelców Kaniowskich – woonerf.
Dostępne mieszkania w tej inwestycji
| Nazwa | Rzut | Pokoje | Powierzchnia | Piętro | Cena | Status |