Nowe mieszkanie na sprzedaż 2 pokoje Łódź Widzew, 41,85 m2, 7 piętro - nr III.7.5
Oferta sprzedaży od Resi Capital S.A.
Łódź, Widzew, Stary Widzew, ul. Juliana Tuwima (1,7km od centrum Łodzi)

Główne cechy mieszkania
Ważne informacje
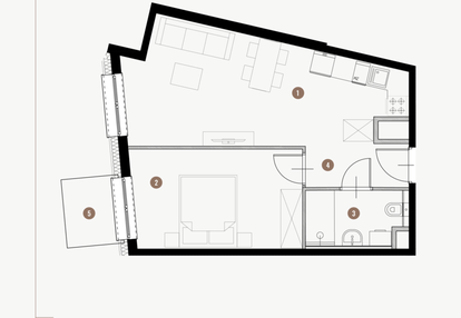
Mieszkanie 2 pokojowe
Inwestycja
Tuwima Apartments
łódzkie, Łódź, Widzew, Stary Widzew
Zespół budynków mieszkalnych wielorodzinnych z częścią handlową zlokalizowaną na parterze, dostępną z poziomu dróg publicznych. Kompleks składa się z 2 budynków mieszkalnych z bogatą ofertą usług gastronomiczno-handlowych. W dbałości o poszanowanie dla otaczającego nas świata, wszystkie nasze projekty są certyfikowane w systemie BREEAM, na poziomie Excellent. Budynki uzyskały wysokie oceny w kluczowych kategoriach: lokalizacja i dostępność komunikacyjna, zastosowanie rozwiązań zmniejszających zużycie wody i energii, oraz wykorzystanie prośrodowiskowych i ekologicznych materiałów.
Dostępne mieszkania w tej inwestycji
| Nazwa | Rzut | Pokoje | Powierzchnia | Piętro | Cena | Status |