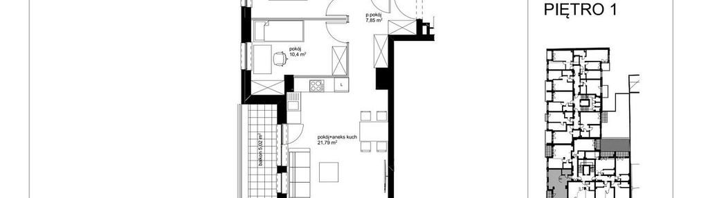
Nowe mieszkanie na sprzedaż 3 pokoje Łódź Polesie, 55,68 m2, 1 piętro - nr B1
Oferta sprzedaży od Platforma Mieszkaniowa
Łódź, Polesie, Stare Polesie, ul. Kopernika 49 (0,9km od centrum Łodzi)

Główne cechy mieszkania
Ważne informacje
Mieszkanie 3 pokojowe
Dodatkowe informacje
Udogodnienia

Usługi w budynku

Winda
Przyroda

Park
Inwestycja
Apartamenty Kopernika - etap II
łódzkie, Łódź, Polesie, Stare Polesie
Jakie trzy czynniki decydują o wartości nieruchomości? Lokalizacja , lokalizacja, lokalizacja! Centrum miasta - skrzyżowanie Kopernika z Łąkową - to dobra lokata kapitału oraz przestrzeń do życia dla ludzi ceniących wielkomiejski styl bycia. W bezpośredniej okolicy Apartamentów Kopernika zlokalizowana jest: komunikacja miejska, szkoły, ośrodki akademickie, biura, sklepy, park im. ks. J. Poniatowskiego, restauracje i puby. Spacer do ul. Piotrkowskiej zajmie 15 minut. Zmotoryzowani mieszkańcy również docenią położenie w pobliżu głównych arterii miasta (Mickiewicza , Włókniarzy). W siedmiokondygnacyjnym obiekcie zaplanowano mieszkania o pow. od 25 do 83 mkw., lokale handlowo-usługowe w parterze oraz dwupoziomową halę garażową w głębi posesji.
Dostępne mieszkania w tej inwestycji
| Nazwa | Rzut | Pokoje | Powierzchnia | Piętro | Cena | Status |