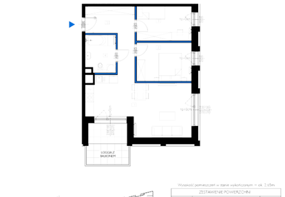
Nowe mieszkanie na sprzedaż 3 pokoje Łódź Widzew, 61,18 m2, 2 piętro - nr 18
Oferta sprzedaży od Vision Development
Łódź, Widzew, Stary Widzew, ul. Ks. Biskupa Wincentego Tymienieckiego 33 (2,7km od centrum Łodzi)

Główne cechy mieszkania
Ważne informacje
Mieszkanie 3 pokojowe
Dodatkowe informacje
Udogodnienia

Usługi concierge

Inteligentny dom

Wózkarnia

Klimatyzacja
Przyroda

Staw

Park
Inwestycja
Folwark Scheiblera
łódzkie, Łódź, Widzew, Stary Widzew
Folwark Scheiblera Światowy standard spleciony z dziedzictwem Łodzi. Folwark Scheiblera to unikalna inwestycja premium oferująca wyjątkową przestrzeń do życia i pracy. Bezkompromisowa wizja, najwyższa jakość architektury, wysoka wrażliwość na estetykę i detale. Bogata historia sięgająca połowy lat 70. XIX wieku oraz czarująca lokalizacja w zielonym parku „Nad Jasieniem” dogodnie umiejscowionym w centrum miasta. Standard Premium Folwark Scheiblera przy ul. Tymienieckiego 33a w Łodzi to efekt bezkompromisowego długoletniego dążenia do zrealizowania odważnej wizji. Marzenie o projekcie, który należycie odda hołd przemysłowej historii Łodzi a jednocześnie wzbogaci miejską tkankę o nową jakość staje się rzeczywistością. Inwestycja oferuje szeroki wachlarz mieszkań, od funkcjonalnych kawalerek po 135 metrowe penthouse'y z olbrzymimi przeszkleniami, tarasami oraz wysokością ponad 4m. Dostępne są nawet do dwupoziomowe apartamenty z prywatnymi ogródkami. Dla wygody mieszkańców przewidziano podziemny parking, monitoring osiedla, portiernię, ładowarkę pojazdów EV oraz rozbudowaną strefę wspólną. Strefa komfortu to 125m² przestrzeń, na której znajdzie się prywatna siłownia, sala jogi, salon klubowy ze stołem bilardowym oraz biblioteczka sąsiedzka. Niebywała lokalizacja W centrum miasta, lecz z dala od zgiełku. Otoczenie 13 hektarowego zielonego parku, oferuje spokój blisko natury z udogodnieniami miejskimi na wyciągnięcie ręki. Bogata historia U fundamentów tej inwestycji stoi bogata historia jednego z największych łódzkich rodów fabrykantów. Folwark Scheiblera to wyjątkowe miejsce do zamieszkania, zarówno ze względu na unikalny klimat, który tworzą zabytkowe budynki dawnego folwarku jak i ciekawą historię, która stoi za tym miejscem.
Dostępne mieszkania w tej inwestycji
| Nazwa | Rzut | Pokoje | Powierzchnia | Piętro | Cena | Status |