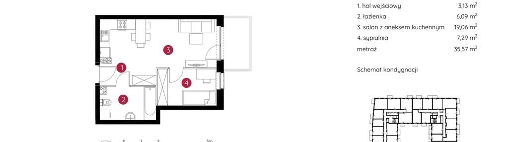
Nowe mieszkanie na sprzedaż 2 pokoje Łódź Polesie, 35,57 m2, 2 piętro - nr 1.C.2.04
Oferta sprzedaży od Murapol Real Estate
Łódź, Polesie, Stare Polesie, ul. Legionów 111 (2,1km od centrum Łodzi)


Główne cechy mieszkania
Ważne informacje
Mieszkanie 2 pokojowe
Dodatkowe informacje
Udogodnienia

Wózkarnia

Winda

Inteligentny dom
Przyroda

Park
Inwestycja

Murapol Ergo
łódzkie, Łódź, Polesie, Stare Polesie
WYBRANE MIESZKANIA W PAKIECIE Z MIEJSCEM POSTOJOWYM W CENIE 30000 ZŁ I/LUB KOMÓRKĄ LOKATORSKĄ W CENIE 12100 ZŁ-26150 ZŁ . O SZCZEGÓŁY ZAPYTAJ DEWELOPERA. Zamieszkaj na Starym Polesiu z dodatkową strefą dla mieszkańców Murapol Ergo to nowocześnie zaprojektowana inwestycja z praktycznymi udogodnieniami odpowiadającymi na potrzeby najbardziej wymagających mieszkańców. Strefa coworkingowa to doskonałe miejsce do pracy, zaś bawialnia odpowie na potrzeby najmłodszych lokatorów. Stacja ładowania pojazdów elektrycznych zaadresuje preferencje właścicieli aut z napędem elektrycznym w mieście. Z kolei zielony dach przyczyni się do oczyszczania powietrza czy obniżania temperatury otoczenia w lecie. Przedsięwzięcie zostanie zrealizowane przy ul. Legionów, zaledwie 1,5 km od wypełnionych atrakcjami pl. Wolności i ul. Piotrkowskiej. W pobliżu mieści się kampus Uniwersytetu Medycznego w Łodzi, a jedynie 900 m dzielić będzie przyszłych mieszkańców od największego zieleńca w mieście – Parku na Zdrowiu. Klasyczna architektura 4-piętrowa bryła budynku z wewnętrznym dziedzińcem i przyjaznymi przestrzeniami wspólnymi. Kompaktowe mieszkania Kawalerki oraz 2-, 3- i 4-pokojowe mieszkania o atrakcyjnych aranżacyjnie układach. Dla studenta, jak i całej rodziny 176 mieszkań o zróżnicowanych i najbardziej pożądanych metrażach od 25 do 66 mkw. Tutaj poczujesz się komfortowo Mieszkania w Murapol Ergo są synonimem wygody, funkcjonalności i praktyczności. Bryła budynku zaprojektowana w kształcie niedomkniętego kwadratu umożliwiła rozplanowanie układów mieszkań w sposób maksymalnie wykorzystujący przestrzeń użytkową, minimalizując metraż w przedpokojach. Wszystkie lokale mieszkalne na parterze oferują dostęp do własnego ogródka o powierzchni nawet 60 mkw., a na piętrach – do przestronnych balkonów. By zwiększyć komfort mieszkańców, w budynku przewidziano liczne komórki lokatorskie oraz wózkownie. Zarabiaj na wynajmie w Łodzi Oferta Murapol Ergo składa się przede wszystkim z niezwykle atrakcyjnych inwestycyjnie 2-pokojowych mieszkań i kawalerek. To najbardziej poszukiwane układy na rynku, które odpowiedzą zarówno na potrzeby najemców długoterminowych, jak i krótkoterminowych w postaci m.in. studentów z pobliskiej uczelni medycznej czy turystów. 2-pokojowe mieszkania zaczynają się już od 32 mkw. Poznaj codzienne udogodnienia: • Opcja smart home • Pakiet antysmogowy w standardzie • Jasne wnętrza dzięki oknom portfenetrowym • Balkony o pow. do 9 mkw. • Miejski węzeł cieplny • Wysoki standard wykończenia części wspólnych. • Energooszczędne oświetlenie LED w budynkach • Szybkie i ciche windy • Komórki lokatorskie • Wózkownie • Miejsca postojowe w hali garażowej i naziemne • Stacja ładowania aut elektrycznych • Stojaki rowerowe • Lokale usługowe na terenie inwestycji • Ogrodzenie inwestycji • Zielony dach Bądź blisko centrum Łodzi Murapol Ergo przynależy do strefy śródmiejskiej, a ulica Legionów, przy której będzie zaadresowana inwestycja, prowadzi wprost do ścisłego serca miasta, czyli placu Wolności i ulicy Piotrkowskiej. Nieopodal znajduje się również kampus Uniwersytetu Medycznego w Łodzi, co może przykuć uwagę studentów szukających mieszkania na wynajem. Jedynie kwadrans zajmuje stąd dotarcie zarówno do Manufaktury, jak i Parku na Zdrowiu. Murapol Ergo to zatem dobry wybór dla osób pragnących żyć blisko centrum Łodzi, a jednocześnie w kameralnej atmosferze z dala od zgiełku. Miej wszystko w zasięgu ręki KOMUNIKACJA • Inwestycja jest zlokalizowana w niezwykle dogodnym punkcie na mapie Łodzi przy ul. Legionów. Mieszkańcy w zaledwie 6 min rowerem czy ok. 20 min spacerem (1,5 km) będą mogli dotrzeć do placu Wolności i na ulicę Piotrkowską. • Tu przy inwestycji znajduje się przystanek autobusowy Legionów – Artyleryjska (linie 65A, 65B). • W odległości 350 m – 5 min pieszo – jest przystanek tramwajowy Zielona – 1 Maja (linie 83, 15). • Najbliższa stacja kolejowa to Łódź Kaliska – 2,2 km. • Nieopodal przebiega również aleja Włókniarzy, czyli DK91. ROZRYWKA I REKREACJA • Największą atrakcją dla mieszkańców inwestycji Murapol Ergo będzie bliskość centrum miasta. Do zrewitalizowanego pl. Wolności i wypełnionej atrakcjami ul. Piotrkowskiej można dotrzeć już podczas krótkiego spaceru. • Około kwadrans zajmuje stąd dojście do największego centrum handlowego w Polsce, czyli słynnej Manufaktury. To jednak nie tylko miejsce handlu, ale również obiekt pełen atrakcji rozrywkowych i kulturalnych. • W niespełna 15 min spacerem od inwestycji zajmuje także dotarcie do największego miejskiego zieleńca, czyli Parku na Zdrowiu. Na jego terenie znajdują się m.in. Aquapark Fala, Orientarium ZOO czy Atlas Arena po południowej stronie. • Najbliższy klub fitness i siłownia to FitFabric – 450 m od inwestycji. • Miłośników żużlu ucieszy fakt, że MOTO Arena Łódź znajduje się w promieniu 1,2 km. • Nie zapominajmy, że na parterze budynku Murapol Ergo będzie znajdować się strefa dla mieszkańca, złożona z bawialni dla najmłodszych i strefy coworkingowej. ZAKUPY • Największe centrum handlowe pod względem powierzchni w Łodzi, ale również w Polsce, znajduje się 1,2 km od inwestycji. Zaledwie w 3 min można tam dotrzeć samochodem lub też dojść w około kwadrans. • Najbliższy sklep spożywczy działa w promieniu 700 m od inwestycji. • W pobliżu znajdują się też dwa duże dyskonty spożywcze Makro i Netto. • Na parterze budynku Murapol Ergo będą też funkcjonować 3 lokale usługowe, które mogą przybrać formę sklepu, salonu kosmetycznego czy fryzjerskiego. EDUKACJA • Najbliższy żłobek znajduje się 1 km od inwestycji, to zaledwie 15 min spacerem. • Dla nieco starszych pociech przedszkole miejskie nr 98 jest w promieniu 160 m. • W odległości 1,5 km działają trzy szkoły podstawowe: nr 26, nr 36 i szkoła im. św. Ignacego Loyoli. • Do I Liceum Ogólnokształcącego można już dość podczas 20-minutowej przechadzki. • Łódź jest również bogatym miastem akademickim. Najbliższa inwestycji uczelnia to kampus Uniwersytetu Medycznego w Łodzi wraz z halą sportową czy basenem. Od Politechniki Łódzkiej będzie dzielić mieszkańców 12-minutowa przejażdżka rowerem, a od Uniwersytetu Łódzkiego – 20-minutowa.
Dostępne mieszkania w tej inwestycji
Nazwa | Rzut | Pokoje | Powierzchnia | Piętro | Cena | Status |