Nowe mieszkanie na sprzedaż 3 pokoje Łódź Polesie, 59,31 m2, 1 piętro - nr C.1.4
Oferta sprzedaży od Vision Development
Łódź, Polesie, Retkinia Zachód-Smulsko, ul. Maratońska 49 (4,6km od centrum Łodzi)

Główne cechy mieszkania
Ważne informacje
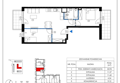
Mieszkanie 3 pokojowe
Dodatkowe informacje
Udogodnienia

Patio / Dziedziniec

Winda

Wózkarnia
Przyroda

Rzeka

Park
Inwestycja
Maratońska 49 - Nowa Retkinia
łódzkie, Łódź, Polesie, Retkinia Zachód-Smulsko
"Maratońska 49 - Nowa Retkinia to nowoczesne osiedle zbudowane z myślą o komforcie mieszkańców. Cały projekt składa się z 321 mieszkań znajdujących się w 4 budynkach. W ofercie znajdują się funkcjonalne mieszkania 1-4 pokojowe od 27 do 90 m². Mieszkania na tle konkurencji wyróżniają się funkcjonalnymi układami, wysokimi oknami oraz bardzo dużymi balkonami wykończonymi gresem w standardzie. Często do jednego mieszkania przynależą 2 a nawet 3 balkony. Na parterach znajdują się mieszkania z pokaźnymi ogródkami o powierzchniach nawet do 180m². Dla pełnej wygody mieszkańców zaprojektowano parking podziemny z bezpośrednim dostępem windą z każdego budynku, a także rowerownię oraz liczne komórki lokatorskie. Do dyspozycji mieszkańców przewidziano również zewnętrzne miejsca parkingowe oraz ogólnodostępną ładowarkę pojazdów elektrycznych. Na zamkniętym terenie Maratońskiej 49 powstał nowoczesny plac zabaw o powierzchni ponad 100 m² oraz obfite nasadzenia zieleni, które nadają osiedlu przyjazny i kameralny charakter. W parterze głównego, 11-kondygnacyjnego budynku znajdą się dodatkowe udogodnienia – prywatne przedszkole Montessori oraz sklep spożywczy. Atutem lokalizacji jest rozwinięta infrastruktura handlowo-usługowa, a jednocześnie spokój – inwestycja została usytuowana z dala od ruchliwych ulic, w sąsiedztwie dużych terenów zielonych, idealnych do spacerów i rekreacji."
Dostępne mieszkania w tej inwestycji
| Nazwa | Rzut | Pokoje | Powierzchnia | Piętro | Cena | Status |