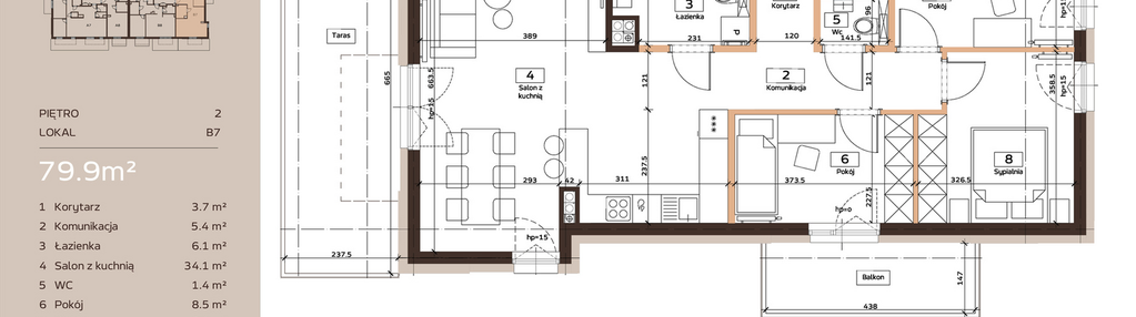
Nowe mieszkanie na sprzedaż 4 pokoje Łódź Widzew, 79,90 m2, 2 piętro - nr B7
Oferta sprzedaży od Budomal Estate Sp. z o.o. Sp. k.
RezerwacjaŁódź, Widzew, Widzew-Wschód, ul. Mechaniczna 2/30 (4,3km od centrum Łodzi)

Główne cechy mieszkania
Ważne informacje
Mieszkanie 4 pokojowe
Dodatkowe informacje
Udogodnienia

Plac zabaw

Rowerownia
Inwestycja
Domkove Widzew
łódzkie, Łódź, Widzew, Widzew-Wschód
DOMKOVE to kameralna inwestycja mieszkaniowa powstająca w spokojnej, zielonej części łódzkiego Widzewa, w sąsiedztwie domów jednorodzinnych, a jednocześnie w niedalekiej odległości od centrum miasta. To miejsce stworzone z myślą o osobach, które cenią harmonię, funkcjonalność oraz wysoki komfort codziennego życia. Domkove to również jedyna inwestycja w okolicy, w ramach której, na jednej przestrzeni powstają domy szeregowe i niskie budynki wielorodzinne. Na terenie osiedla zaprojektowano 7 niewielkich, dwupiętrowych budynków wielorodzinnych, w których znajdą się mieszkania z balkonami lub/i mieszkania z tarasem i ogródkiem usytuowane na parterze oraz 21 dwupoziomowych domów w zabudowie szeregowej, każdy z garażem i własnym ogródkiem. Kameralna skala zabudowy – maksymalnie trzy mieszkania na piętrze - zapewnia prywatność i poczucie spokoju. W pierwszym etapie budowy powstaną dwa budynki wielorodzinne oraz 8 domów szeregowych. Architektura osiedla dla opiera się na prostych, kwadratowych bryłach z płaskimi dachami, których minimalistyczna forma doskonale wpisuje się we współczesne trendy i sprzyja tworzeniu harmonijnej przestrzeni do życia. Przemyślanie zaprojektowane części wspólne, plac zabaw dla najmłodszych oraz udogodnienia sprawiają, że DOMKOVE to miejsce, w którym naprawdę można poczuć się jak w domu. Szczególną uwagę poświęcono zielonej infrastrukturze osiedla. Zróżnicowana roślinność, ogródki przy domach oraz balkony z widokiem na zieleń tworzą przyjazny mikroklimat i prawdziwą oazę spokoju w tętniącym życiem mieście. W bezpośrednim sąsiedztwie znajdują się parki, tereny spacerowe oraz ścieżki rowerowe. DOMKOVE oferuje mieszkania o powierzchniach od 40 m² do ponad 100 m² oraz domy o metrażach od 129 m² do 167 m². Dla wygody mieszkańców przewidziano naziemne miejsca parkingowe, a w jednym z budynków wielorodzinnych powstanie podziemny parking (hala garażowa). Miłośnicy dwóch kółek będą mieli gdzie przechowywać rowery: w budynkach będą rowerownie, na zewnątrz stojaki na rowery. Inwestycja wyróżnia się bardzo dobrą komunikacją – w pobliżu znajdują się przystanki autobusowe i tramwajowe, dworzec Łódź–Widzew oraz stacje rowerowe i hulajnóg. W okolicy dostępna jest również bogata oferta handlowo-usługowa: sklepy, restauracje, kawiarnie, rynek Batory, szkoły, przedszkola, żłobki, przychodnie oraz obiekty sportowe. Domy w zabudowie szeregowej wyposażone są w nowoczesne rozwiązania, takie jak rolety zewnętrzne na parterze oraz ogrzewanie podłogowe. Całość inwestycji realizowana jest z użyciem wysokiej jakości materiałów od sprawdzonych producentów, z dbałością o detale i nowoczesny design. DOMKOVE to idealne połączenie komfortu, estetyki i funkcjonalności – miejsce stworzone do życia, odpoczynku i budowania codziennej harmonii. Daty oddania do użytkowania: Dom wielorodzinny A-B - wrzesień 2026 Dom wielorodzinny C-D - listopad 2026
Dostępne mieszkania w tej inwestycji
| Nazwa | Rzut | Pokoje | Powierzchnia | Piętro | Cena | Status |