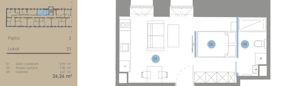
Nowe mieszkanie na sprzedaż 1 pokój Łódź Śródmieście, 26,26 m2, 3 piętro - nr 33
Oferta sprzedaży od Budomal Apartments Sp. z o.o.
Łódź, Śródmieście, Katedralna, ul. Piotrkowska 58 (1,2km od centrum Łodzi)

Główne cechy mieszkania
Ważne informacje
Mieszkanie 1 pokojowe
Dodatkowe informacje
Udogodnienia

Sala fitness

Winda

Rowerownia

Usługi w budynku
Inwestycja
Oficyna - Apartamenty Inwestycyjne Apart Hotel
łódzkie, Łódź, Śródmieście, Katedralna
Oficyna to wyjątkowy projekt mieszkaniowy zlokalizowany w ścisłym centrum Łodzi, tuż przy kultowej ulicy Piotrkowskiej, w sąsiedztwie dworca Łódź Fabryczna oraz Nowego Centrum Łodzi.W czteropiętrowym budynku zaprojektowano łącznie 78 mieszkań o zróżnicowanych metrażach - od kompaktowych kawalerek po bardziej przestronne przestrzenie o powierzchni do 65 m². To propozycja dla osób preferujących miejski styl życia oraz inwestorów poszukujących atrakcyjnych apartamentów inwestycyjnych w doskonałej lokalizacji. Innowacyjnym rozwiązaniem dla tego projektu jest wyraźny podział oferty na dwie niezależne części. Pierwszą część oferty to 45 mieszkań w stanie deweloperskim idealne dla par, singli, osób lubiących miejski styl życia, a także na wynajem. Drugą część oferty stanowią w pełni przygotowane (wykończone i wyposażone) apartamenty inwestycyjne typu Apart Hotel, umiejscowione w wydzielonej części budynku, co zapewnia funkcjonalne oddzielenie strefy inwestycyjnej od prywatnej(mieszkalnej). Apartamenty inwestycyjne Oficyna Apart Hotel – ciesz się zyskiem 7% Integralną częścią projektu OFICYNA jest oferta apartamentów inwestycyjnych klasy premium, zaprojektowanych z myślą o najmie krótkoterminowym. To 35 w pełni wykończonych i wyposażonych apartamentów usytuowanych w niezależnej części budynku, z osobnym wejściem i klatką schodową oraz windą. Inwestycja oferuje gościom dostęp do dedykowanych przestrzeni, takich jak: strefa rekreacyjna, sala spotkań biznesowych, pralnia, cafe bar oraz naziemnych miejsc parkingowych. Bezobsługowy model inwestycyjny Apart Hotel działa w oparciu o sprawdzony model biznesowy, który łączy pełną własność lokalu z profesjonalnym zarządzaniem najmem przez doświadczonego operatora. Dzięki temu inwestorzy mogą cieszyć się stabilnym, pasywnym dochodem bez konieczności angażowania się w bieżącą obsługę. Najważniejsze korzyści: prognozowana stopa zwrotu na poziomie ok. 7% netto, wysoki standard wykończenia części wspólnych, pełna obsługa najmu – doświadczony operator, możliwość zabezpieczenia hipotecznego lub odkupu lokalu, potencjał wzrostu wartości nieruchomości.
Dostępne mieszkania w tej inwestycji
| Nazwa | Rzut | Pokoje | Powierzchnia | Piętro | Cena | Status |