Nowe mieszkanie na sprzedaż 1 pokój Łódź Polesie, 60,66 m2, 5 piętro - nr POGO2/A/6A
Oferta sprzedaży od PROFIT Development
Łódź, Polesie, Stare Polesie, ul. Pogonowskiego 52 (1,2km od centrum Łodzi)

Główne cechy mieszkania
Ważne informacje
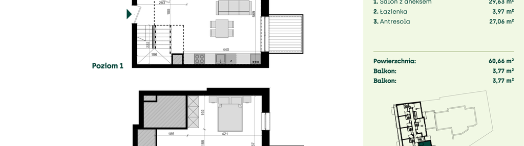
Mieszkanie 1 pokojowe
Dodatkowe informacje
Udogodnienia

Rowerownia

Winda
Inwestycja
Pogonowskiego 52
łódzkie, Łódź, Polesie, Stare Polesie
Przemyślana przestrzeń w centrum Łodzi Pogonowskiego 52 to kameralna inwestycja mieszkaniowa w samym sercu Łodzi. Budynek powstaje w atrakcyjnej lokalizacji – w bezpośrednim sąsiedztwie uczelni, z łatwym dostępem do komunikacji i miejskiej infrastruktury. Projekt łączy nowoczesną architekturę z funkcjonalnymi rozwiązaniami i wysokim standardem wykonania. To miejsce dla osób, które szukają codziennej wygody w uporządkowanej, miejskiej przestrzeni. Bryła budynku została zaprojektowana z dbałością o proporcje i detal. Elewacja wyróżnia się szklanymi balustradami, dużymi przeszkleniami i balkonami wykończonymi płytami gresowymi. Prosty, elegancki charakter całości dobrze wpisuje się w sąsiedztwo, a jednocześnie wprowadza do okolicy współczesny standard. Mieszkania i przestrzeń W budynku przewidziano mieszkania o zróżnicowanych metrażach – od kompaktowych kawalerek po przestronne mieszkania 4-pokojowe. Każde z nich zostało zaprojektowane w oparciu o sprawdzone i doceniane przez naszych klientów układy funkcjonalne. Lokale są ustawne i pozwalają na ekonomiczne wykorzystanie przestrzeni. Szczególnie atrakcyjną propozycją są dwupoziomowe lokale z tarasami na najwyższej kondygnacji – oferujące więcej przestrzeni i swobodę aranżacji. Większość mieszkań ma ekspozycję na wschód lub zachód, co umożliwia klientom wybór mieszkania dopasowanego do ich indywidualnego rytmu dnia. Wysoki standard i bezpieczeństwo Inwestycję realizujemy w podwyższonym standardzie. Projekt części wspólnych zakłada użycie trwałych materiałów nadających wnętrzom elegancji i ponadczasowości – lustra, zabudowy meblowe, tapety. W mieszkaniach przewidziano m.in. drzwi antywłamaniowe najwyższej klasy, parapety z konglomeratu oraz duże okna, które zapewniają naturalne światło i wizualnie powiększają przestrzeń. Każdy detal został przemyślany tak, by służył na lata i nie zestarzał się w formie. Budynek będzie posiadał dwupoziomowy parking podziemny oraz bezpieczne, zamknięte pomieszczenia na rowery – całość zostanie objęta monitoringiem. Dla kogo? Pogonowskiego 52 to propozycja dla osób, które szukają miejsca do życia w centrum, w wysokiej jakości, nowym budynku – bezpiecznym i komfortowym. Dobrze odnajdą się tu zarówno osoby prywatne, jak i inwestorzy – dzięki funkcjonalnym układom, dobremu standardowi i rozsądnej relacji ceny do jakości. To inwestycja zrównoważona: przemyślana, estetyczna i dopasowana do współczesnych oczekiwań.
Dostępne mieszkania w tej inwestycji
| Nazwa | Rzut | Pokoje | Powierzchnia | Piętro | Cena | Status |