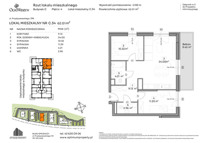
Nowe mieszkanie na sprzedaż 3 pokoje Łódź Widzew, 62,01 m2, 4 piętro - nr C.34
Oferta sprzedaży od Optimum Property
Łódź, Widzew, Olechów-Janów, ul. Przybyszewskiego 292 (6,6km od centrum Łodzi)

Główne cechy mieszkania
Ważne informacje
Mieszkanie 3 pokojowe
Dodatkowe informacje
Udogodnienia

Plac zabaw

Winda
Przyroda

Las

Park
Inwestycja
Och!Widzew
łódzkie, Łódź, Widzew, Olechów-Janów
ZRÓWNOWAŻONA ARCHITEKTURA, PRZEMYŚLANE UKŁADY MIESZKAŃ I WYSOKI STANDARD WYKOŃCZENIA TWORZĄ MIEJSCE, W KTÓRYM BĘDZIESZ DOBRZE MIESZKAĆ. W pięciu kameralnych budynkach powstaną mieszkania z prywatnymi zielonymi tarasami na parterze oraz przestronnymi balkonami i tarasami na piętrach. Znajdziesz wśród nich swoje idealne miejsce do życia – funkcjonalną kawalerkę, wygodne dwu lub trzypokojowe mieszkanie dla Twojej rodziny, a może przestronny apartament.
Dostępne mieszkania w tej inwestycji
| Nazwa | Rzut | Pokoje | Powierzchnia | Piętro | Cena | Status |