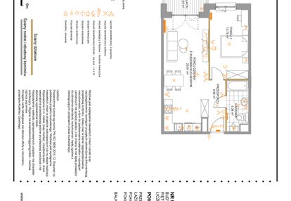
Nowe mieszkanie na sprzedaż 2 pokoje Łódź Widzew, 49,40 m2, 2 piętro - nr A27
Oferta sprzedaży od BUD-RIM Development
Łódź, Widzew, Stoki, ul. Strążyska (6km od centrum Łodzi)

Główne cechy mieszkania
Ważne informacje
Mieszkanie 2 pokojowe
Dodatkowe informacje
Udogodnienia

Winda

Plac zabaw
Inwestycja
Na Skarpie
łódzkie, Łódź, Widzew, Stoki
Jeżeli szukasz miejsca położonego w dobrej lokalizacji, a jednocześnie cenisz nowoczesny design to inwestycja NA SKARPIE spełni Twoje oczekiwania! W ramach projektu zostaną wybudowane kameralne, trzypiętrowe budynki z przestronnymi, funkcjonalnymi mieszkaniami, zaprojektowanymi w wysokim standardzie z dbałością o każdy detal. Każde będzie miało własny ogródek, taras lub balkon. Różnorodność typów oraz rozkładów mieszkań, wraz z szerokim wyborem metraży od 33 m2 do 100 m2, sprostają indywidualnym potrzebom przyszłych mieszkańców. Duże okna, zapewniają nie tylko doskonałe doświetlenie wnętrz w korzystnie usytuowanych względem stron świata budynkach, ale także nadadzą elewacjom estetycznego rytmu. Przewidziana hala garażowa i zewnętrzne miejsca postojowe pozwolą na bezstresowe i bezpieczne zaparkowanie Twojego samochodu.
Dostępne mieszkania w tej inwestycji
| Nazwa | Rzut | Pokoje | Powierzchnia | Piętro | Cena | Status |