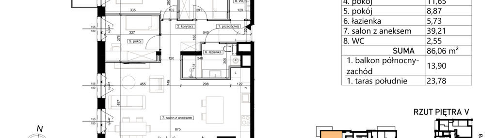
Nowe mieszkanie na sprzedaż 4 pokoje Łódź Widzew, 86,06 m2, 5 piętro - nr M60
Oferta sprzedaży od House Factory
Łódź, Widzew, Stary Widzew, ul. Targowa 49 (1,1km od centrum Łodzi)

Główne cechy mieszkania
Ważne informacje
Mieszkanie 4 pokojowe
Dodatkowe informacje
Udogodnienia

Usługi w budynku

Winda

Rowerownia

Wózkarnia
Przyroda

Park
Inwestycja
Finezja
łódzkie, Łódź, Widzew, Stary Widzew
Inwestycja Finezja przy ul. Targowej 49 usytuowana jest w samym sercu miasta, gdzie historia spotyka się z nowoczesnością. Lokalizacja, która pozwala jednocześnie cieszyć się zaletami centrum takimi jak nowoczesne kawiarnie, kultowe miejsca jak Księży Młyn, dynamiczne centra kultury, a jednocześnie, dosłownie na wyciągnięcie ręki, zielony azyl, jakim jest Park Źródliska. To adres dla tych, którzy chcą mieszkać aktywnie, wygodnie, w otoczeniu nowoczesnego stylu dopełnionego spokojem kameralnej i zielonej okolicy. Apartamenty położone w najbardziej klimatycznej części Łodzi. Finezja sąsiaduje z miejscami, które budują tożsamość miasta: Park źródliska, Łódzka Filmówka, Księży Młyn, Monopolis, oraz słynna ulica Piotrkowska. Z jednej strony mamy łatwy dostęp do miejskich udogodnień m.in.: zakupów, gastronomii, rozrywki (Galeria Łódzka lub Monopolis do których możemy się dostać podczas 5 minutowego spaceru) Z drugiej jednak strony bezpośrednie sąsiedztwo zieleni i przestrzeni rekreacyjnej. Okna we frontowej części inwestycji wychodzą bezpośrednio na Park Źródliska, który jest jednym z najstarszych i z pewnością najbardziej romantycznych parków w Łodzi. Atuty Finezji: • Styl i jakość: Inwestycja łączy historyczny klimat i modernistyczne wykończenia. kamienica we współczesnym wydaniu. Stylowe wnętrza, szlachetne detale i miejski charakter • Dostępność różnych metraży: W ofercie apartamenty 1-, 2-, 3- i 4-pokojowe, w zakresie od około 27 m2 do 86 m2 z własnymi ogródkami, balkonami i dużymi tarasami. • Lokalizacja praktycznie w samym parku: Pomimo ścisłego centrum miasta, inwestycja zlokalizowana jest praktycznie w samym Parku Źródliska, z ogromną ilością bezpłatnych miejsc parkingowych, co w dzisiejszych czasach stanowi niebywałą przewagę konkurencyjną • Dla komfortu mieszkańców przewidziano przestronny garaż podziemny z 61 miejscami postojowymi. • Doskonała komunikacja i infrastruktura: W obrębie kilku minut pieszo znajdują się szkoły, restauracje, galerie, uczelnie. • Bliskość Filmówki, gdzie powyższa uczelnia to jedno z najbardziej prestiżowych miejsc kształcenia w Polsce w dziedzinie filmu, telewizji i teatru
Dostępne mieszkania w tej inwestycji
| Nazwa | Rzut | Pokoje | Powierzchnia | Piętro | Cena | Status |