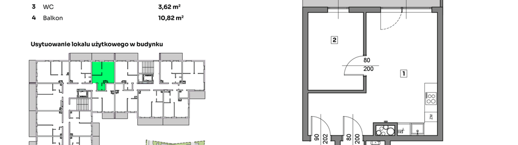
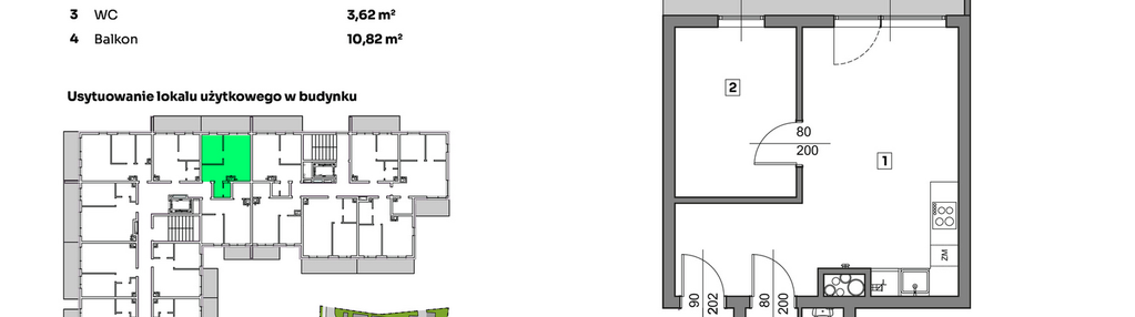
Nowe mieszkanie na sprzedaż 2 pokoje Łódź Śródmieście, 36,94 m2, 5 piętro - nr L.U. 10
Oferta sprzedaży od Optimum Property
Łódź, Śródmieście, Śródmieście-Wschód, ul. Telefoniczna 19 (3,6km od centrum Łodzi)

Główne cechy mieszkania
Ważne informacje
Mieszkanie 2 pokojowe
Dodatkowe informacje
Udogodnienia

Rowerownia

Winda
Inwestycja
Nova Radiostacja - apartamenty inwestycyjne
łódzkie, Łódź, Śródmieście, Śródmieście-Wschód
1. DLA INWESTORÓW/PRZEDSIĘBIORCÓW/OSÓB KUPUJĄCYCH Z MYŚLĄ O ZARABIANIU NA WYNAJMIE atrakcyjne mieszkania na wynajem (kawalerka / 2 pokoje) z 23% vat blisko UŁ, UMed – studenci jako przyszli najemcy mieszkania gotowe do odbioru kup teraz zarabiaj na wynajmie od października szybki zwrot z wynajmu bardzo duży popyt na wynajem w tych okolicach (szczególnie duży potencjał widzimy w inwestycji Nova Radiostacja ze względu na wydziały UŁ, UMed, Paragraf, wydział matematyki i informatyki, wydział biologii i ochrony środowiska, wydział zarządzania, wydział chemii etc. – wszystko po sąsiedzku przy ul. Pomorskiej) 2. DLA PRZEDSIĘBIORCÓW/OSÓB SZUKAJĄCYCH MIEJSCA NA BIURO nowe miejsce dla Twojego biznesu na biuro, dla małej firmy, np. kosmetyczka, grafik, projektant, freelancer, przedsiębiorca na JDG, usługi księgowo-podatkowe mieszkaj i pracuj, komfortowe biuro w mieszkaniu Cenisz wygodę, szukasz spokojnego i bezpiecznego miejsca do zamieszkania z dala od zgiełku miasta, a jednocześnie blisko centrum? Nova Radiostacja to Twój nowy adres! W nowoczesnym pięciopiętrowym budynku otoczonym zielenią, położonym przy ulicy Telefonicznej 19 w Łodzi, powstanie blisko 100 mieszkań, apartamentów i lokali użytkowych o powierzchniach od 30 do 80 m2 z zielonymi tarasami i balkonami. Osiedle będzie ogrodzone, a wjazd będzie odbywał się przez dwie bramy na pilot. To nie tylko komfort na co dzień, ale także gwarancja spokoju i bezpieczeństwa. Ponadto, w budynku zaprojektowaliśmy ogólnodostępną rowerownię na parterze i garaż podziemny z miejscami postojowymi, komórkami lokatorskimi i prywatnymi pomieszczeniami na rowery. Jesteśmy pewni, że każdy znajdzie tu swoje wymarzone miejsce do życia! Wybierz nowe mieszkanie już teraz!
Dostępne mieszkania w tej inwestycji
| Nazwa | Rzut | Pokoje | Powierzchnia | Piętro | Cena | Status |