Nowe mieszkanie na sprzedaż 2 pokoje Łódź Śródmieście, 42,72 m2, 3 piętro - nr 29
Oferta sprzedaży od Optimum Property
Łódź, Śródmieście, Śródmieście-Wschód, ul. Telefoniczna 19 (3,6km od centrum Łodzi)

Główne cechy mieszkania
Ważne informacje
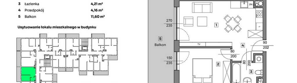
Mieszkanie 2 pokojowe
Dodatkowe informacje
Udogodnienia

Rowerownia

Winda
Inwestycja
Nova Radiostacja
łódzkie, Łódź, Śródmieście, Śródmieście-Wschód
Cenisz wygodę, szukasz spokojnego i bezpiecznego miejsca do zamieszkania z dala od zgiełku miasta, a jednocześnie blisko centrum? Nova Radiostacja to Twój nowy adres! W nowoczesnym pięciopiętrowym budynku otoczonym zielenią, położonym przy ulicy Telefonicznej 19 w Łodzi, powstanie blisko 100 mieszkań, apartamentów i lokali użytkowych o powierzchniach od 30 do 80 m2 z zielonymi tarasami i balkonami. Osiedle będzie ogrodzone, a wjazd będzie odbywał się przez dwie bramy na pilot. To nie tylko komfort na co dzień, ale także gwarancja spokoju i bezpieczeństwa. Ponadto, w budynku zaprojektowaliśmy ogólnodostępną rowerownię na parterze i garaż podziemny z miejscami postojowymi, komórkami lokatorskimi i prywatnymi pomieszczeniami na rowery. Jesteśmy pewni, że każdy znajdzie tu swoje wymarzone miejsce do życia! Wybierz nowe mieszkanie już teraz!
Dostępne mieszkania w tej inwestycji
| Nazwa | Rzut | Pokoje | Powierzchnia | Piętro | Cena | Status |