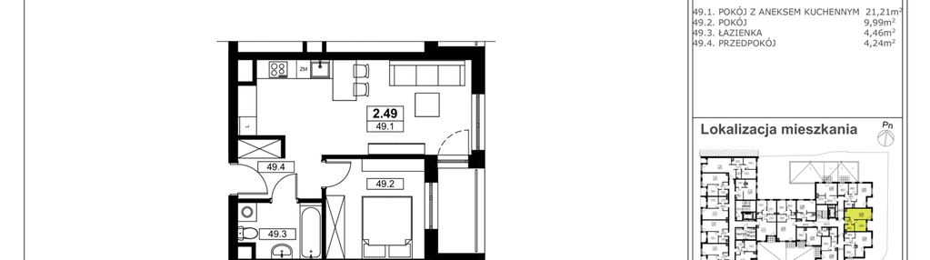
Nowe mieszkanie na sprzedaż 2 pokoje Łódź Śródmieście, 39,90 m2, 1 piętro - nr 2.49
Oferta sprzedaży od Malta Sp. z o.o.
Łódź, Śródmieście, Katedralna, ul. Wólczańska 158/160 (0,5km od centrum Łodzi)


Główne cechy mieszkania
Ważne informacje
Mieszkanie 2 pokojowe
Dodatkowe informacje
Udogodnienia

Usługi w budynku

Winda

Rowerownia
Przyroda

Park
Inwestycja

Accanto
łódzkie, Łódź, Śródmieście, Katedralna
Accanto to nowy projekt deweloperski firmy Malta II Sp. z o.o. Na realizowanym osiedlu zaprojektowano 147 mieszkań o powierzchni 26-70m2. Główną zaletami inwestycji jest lokalizacja w samym centrum Łodzi, w pobliżu ulicy Piotrkowskiej. Przekazanie kluczy nastąpi do końca 2025 roku.
Dostępne mieszkania w tej inwestycji
Nazwa | Rzut | Pokoje | Powierzchnia | Piętro | Cena | Status |