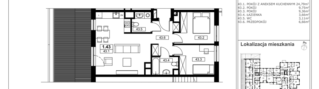
Nowe mieszkanie na sprzedaż 3 pokoje Łódź Śródmieście, 57,33 m2, 5 piętro - nr 1.43
Oferta sprzedaży od Malta Sp. z o.o.
RezerwacjaŁódź, Śródmieście, Katedralna, ul. Wólczańska 158/160 (0,5km od centrum Łodzi)

Główne cechy mieszkania
Ważne informacje
Mieszkanie 3 pokojowe
Dodatkowe informacje
Udogodnienia

Usługi w budynku

Rowerownia

Winda
Przyroda

Park
Inwestycja
Accanto
łódzkie, Łódź, Śródmieście, Katedralna
Accanto to nowy projekt deweloperski firmy Malta II Sp. z o.o. Na realizowanym osiedlu zaprojektowano 147 mieszkań o powierzchni 26-70m2. Główną zaletami inwestycji jest lokalizacja w samym centrum Łodzi, w pobliżu ulicy Piotrkowskiej. Przekazanie kluczy nastąpi do końca 2025 roku.
Dostępne mieszkania w tej inwestycji
| Nazwa | Rzut | Pokoje | Powierzchnia | Piętro | Cena | Status |