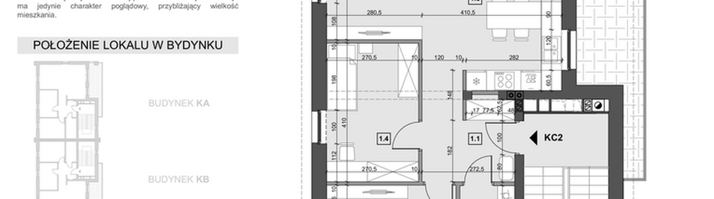
Nowe mieszkanie na sprzedaż 4 pokoje Lublin Czechów Północny, 69,15 m2, 1 piętro - nr KC2
Oferta sprzedaży od DOMLUBLIN
Inwestycja ograniczonaLublin, Czechów Północny, ul. Aleksandra Zelwerowicza (4,3km od centrum Lublina)

Główne cechy mieszkania
Ważne informacje
Mieszkanie 4 pokojowe
Inwestycja
Wzgórze Zelwerowicza
lubelskie, Lublin, Czechów Północny
Wzgórze Zelwerowicza to nowoczesne osiedle o wysokim standardzie wykończenia i kameralnej architekturze. W ofercie znajdą się mieszkania o powierzchni od 43,91 m2 do 76,99 m2. Budynki wchodzące w skład osiedla będą całkowicie zeroemisyjne. Nowe osiedle powstające przy ulicy Zelwerowicza w Lublinie, to 55 budynków jednorodzinnych, które podzielone zostaną na 7 zespołów. W sumie do użytku oddanych zostanie 110 mieszkań z garażem i ogródkiem. Każdy z budynków będzie zeroemisyjny. Oznacza to, że wykorzysta on dostępne źródła energii odnawialnej i jednocześnie zrównoważy ich zużycie z wykorzystywaniem nieodnawialnych źródeł energii. W skład innowacyjnych rozwiązań będą wchodzić między innymi zapewniające ogrzewanie pompy ciepła, panele fotowoltaiczne na dachach oraz systemy rekuperacji z odzyskiem ciepła. Dzięki tym rozwiązaniom przyszli mieszkańcy będą mogli liczyć na znaczne obniżenie swoich rachunków. Zapłacą oni jedynie za wodę, kanalizację, śmieci oraz zużycie prądu. Użytkownicy nie będą musieli martwić się cenami gazu, ponieważ ze względu na ekologię zrezygnowano z tego rozwiązania. Każdy z właścicieli będzie mógł zaprojektować indywidualne mieszkanie, dzięki ofercie zmian lokatorskich. Oznacza to możliwość przesuwania ścian działowych, a także przyłączy elektrycznych, czy hydraulicznych. W standardzie wykończenia znajdą się tynki gipsowe, powłoka malarska, armatura grzewcza oraz sieć tv i internetowa. Na wyposażeniu będą również wysokiej klasy okna i drzwi wejściowe, a do tego parapety z aglomeratu. Dostępne będą mieszkania 2, 3 lub 4 pokojowe do których przypisany będzie ogródek lub taras. Samochody mieszkańcy zostawić będą mogli w zbilansowanym jedno- lub dwustanowiskowym garażu. W sumie do dyspozycji mieszkańców oddanych będzie 200 miejsc postojowych.
Dostępne mieszkania w tej inwestycji
| Nazwa | Rzut | Pokoje | Powierzchnia | Piętro | Cena | Status |