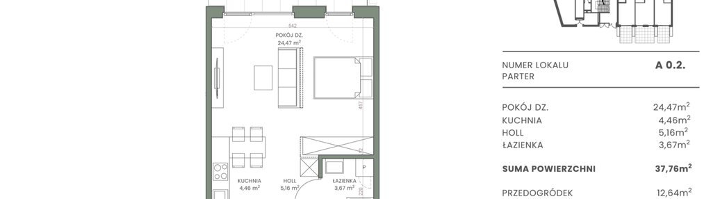
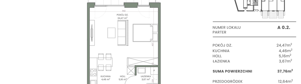
Nowe mieszkanie na sprzedaż 2 pokoje Międzyzdroje, 37,18 m2, parter - nr 0.2
Oferta sprzedaży od MIO PINO Sp. z o.o.
Międzyzdroje, Polna 36C (0,3km od centrum Międzyzdrojów)

Główne cechy mieszkania
Ważne informacje
Mieszkanie 2 pokojowe
Dodatkowe informacje
Udogodnienia

Rowerownia

Klimatyzacja

Winda
Przyroda

Rezerwat przyrody

Morze
Inwestycja
Mio Pino
zachodniopomorskie, kamieński, Międzyzdroje
MIO PINO to komfort mieszkania, spokój natury, zieleń drzew i błękit morza, który w niezwykły sposób łączy się z emocjami miasta. Zapraszamy do MIO PINO – kameralnego, 4 kondygnacyjnego budynku, który łączy nowoczesność z naturą. Obiekt wyróżnia się modernistyczną bryłą budynku utrzymaną w jasnych naturalnych kolorach. Inspiracją dla naszego projektu były najlepsze tradycje włoskiego designu, znanego z elegancji, dbałości o szczegóły i użycia wysokiej jakości materiałów. Na elewacji zastosowano okładziny HPL w jasnych naturalnych kolorach w połączeniu z odcieniami jasnego drewna. Lekkości nadają szklane balustrady balkonów oraz duże przeszklenia okien w ramach o ciekawym odcieniu taupe.
Dostępne mieszkania w tej inwestycji
| Nazwa | Rzut | Pokoje | Powierzchnia | Piętro | Cena | Status |