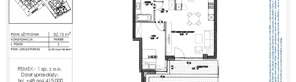
Nowe mieszkanie na sprzedaż 2 pokoje Mińsk Mazowiecki, 52,13 m2, parter - nr B.0.50
Oferta sprzedaży od Remex
RezerwacjaMińsk Mazowiecki, ul. Józefa Piłsudskiego 38

Główne cechy mieszkania
Ważne informacje
Mieszkanie 2 pokojowe
Dodatkowe informacje
Udogodnienia

Usługi w budynku

Winda
Inwestycja
Osiedle BALTICA
mazowieckie, miński, Mińsk Mazowiecki
Inwestycja zlokalizowana w centrum Mińska Mazowieckiego przy ul. Piłsudskiego 38 z przyjazną przestrzenią miejską z licznymi lokalami usługowymi. Bliskość przedszkoli, szkół i punktów handlowych ułatwia codzienne obowiązki. Bardzo dobra komunikacja umożliwia sprawny kontakt z aglomeracją warszawską. Budynek i mieszkania Budynek zaprojektowany z dbałością o wygodę mieszkańców, przy użyciu materiałów wysokiej klasy. W ramach przedsięwzięcia powstanie łącznie 151 mieszkań w 4 piętrowych klatkach w każdej winda. Dla bezpieczeństwa mieszkańców teren osiedla będzie ogrodzony i monitorowany. Na terenie osiedla planowane jest zamontowanie przesyłkomatów. Mieszkania zostały zaprojektowane w sposób pozwalający na dość dużą dowolność aranżacji. Dodatkowo Inwestor zapewnił komórki lokatorskie i garaż podziemny. Większe mieszkania wyposażono w łazienki i WC, dla codziennego komfortu członków rodzinny.
Dostępne mieszkania w tej inwestycji
| Nazwa | Rzut | Pokoje | Powierzchnia | Piętro | Cena | Status |