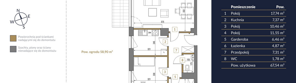
Nowe mieszkanie na sprzedaż 3 pokoje Mińsk Mazowiecki, 67,54 m2, parter - nr 1A
Oferta sprzedaży od Villa Development Sp. z o.o.
Mińsk Mazowiecki, ul. Warszawska 222 (1,5km od centrum Mińska Mazowieckiego)

Główne cechy mieszkania
Ważne informacje
Mieszkanie 3 pokojowe
Dodatkowe informacje
Udogodnienia

Plac zabaw

Winda

Rowerownia
Inwestycja
Warszawska 222
mazowieckie, miński, Mińsk Mazowiecki
Osiedle Warszawska 222 jest w miejscu, z którego niedaleko do sklepów i popularnych marketów. W kilka minut można dotrzeć do miejskiego targowiska. W pobliżu również liczne lokale gastronomiczne, szpital, apteki, paczkomaty i poczta. Dużym udogodnieniem dla rodzin z dziećmi będzie komfortowy dostęp do placówek edukacyjno-opiekuńczych. Dogodne i szybkie połączenia komunikacyjne oraz dopracowane projekty wraz z nutą historii czynią adres Warszawska 222 idealnym miejscem do zamieszkania na mapie Mińska Mazowieckiego. Osiedle położone jest wśród niskiej zabudowy architektonicznej, z dala od przeciążonych komunikacyjnie dzielnic. Planując zabudowę terenu uwzględniliśmy jakże ważną dla każdego intymność i prywatność zachowując odpowiednie w tym zakresie standardy. Zadbaliśmy o komfortową przestrzeń prywatną – projektując przestronne i praktyczne mieszkania z dużymi oknami, tarasami i ogrodami oraz przestrzeń publiczną – budując osiedle w miejscu z doskonałym dostępem do parków, terenów zielonych i rekreacyjnych, placówek oświatowych i opieki medycznej oraz punktów handlowo – usługowych.
Dostępne mieszkania w tej inwestycji
| Nazwa | Rzut | Pokoje | Powierzchnia | Piętro | Cena | Status |