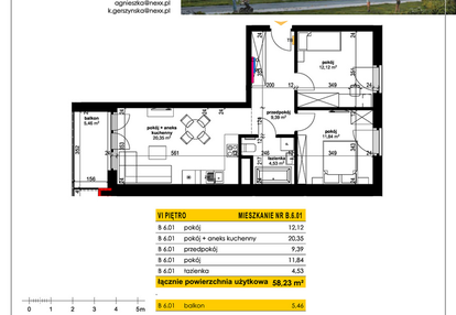
Nowe mieszkanie na sprzedaż 3 pokoje Mysłowice, 58,23 m2, 6 piętro - nr B 6.01
Oferta sprzedaży od NEXX Developer Sp. z o.o
Mysłowice, ul. Wielka Skotnica (4,9km od centrum Mysłowic)

Główne cechy mieszkania
Ważne informacje
Mieszkanie 3 pokojowe
Dodatkowe informacje
Udogodnienia

Wózkarnia

Inteligentny dom

Winda

Usługi w budynku
Inwestycja
Park Moniuszki II C
śląskie, Mysłowice
Inwestycję Park Moniuszki II stanowią nowoczesne, kaskadowe budynki zlokalizowane na śląskim rynku nieruchomości zaledwie 10 minut od centrum Katowic. Projekty mieszkań Park Moniuszki II przedstawiają funkcjonalne wnętrza o powierzchni od 30 mkw-115 mkw. Mieszkania posiadają przynależne ogródki, tarasy lub balkony. Ostatnie kondygnacje stanowią apartamenty z przestronnymi tarasami. W strefie zewnętrznej zaplanowana jest realizacja projektu parku miejskiego z placem zabaw, boiskiem sportowym oraz ścieżkami spacerowymi przy zachowaniu nowoczesnych elementów małej architektury. Komfort życia zapewni nie tylko wysoki standard użytych materiałów ale również architektura budynku, która zakłada powstanie dwóch wind, dwukondygnacyjnego parkingu podziemnego oraz znacznej ilości komórek lokatorskich w celu przechowywania potrzebnych rzeczy a także ogólnodostępną wózkownię. Bezpieczeństwo mieszkańców zapewni monitoring budynku, a wygodę mieszkania gwarantuje nowoczesny pasaż lokali usługowych, powstały bezpośrednio przy inwestycji. Atutem miasta Mysłowice, gdzie realizowany jest projekt Park Moniuszki, jest doskonała komunikacja z drogami A4, S1 oraz E86. W pobliżu znajdują się liczne obiekty handlowe, usługowe, edukacyjne i medyczne. Inwestycja powstaje z wykorzystaniem najnowszych energooszczędnych technologii. Standard deweloperski PLUS oferowanych mieszkań to między innym systemowe ogrzewanie podłogowe, okna 7-komorowe 3-szybowe z zewnętrznymi roletami sterowanymi elektrycznie, atestowane drzwi wejściowe antywłamaniowe czy niezbędne instalacje przyłączeniowe. Wszystkie mieszkania i apartamenty będą wyposażone w standardzie w lokalnie sterowany system SMART HOME firmy APPARTME - 3 klawiszowy z opcją jego rozbudowania oraz rozszerzenia o zdalne sterowanie. Idąc naprzeciw Państwa potrzebom wprowadziliśmy również możliwość wykończenia mieszkania POD KLUCZ w wielu wariantach do wyboru.
Dostępne mieszkania w tej inwestycji
| Nazwa | Rzut | Pokoje | Powierzchnia | Piętro | Cena | Status |