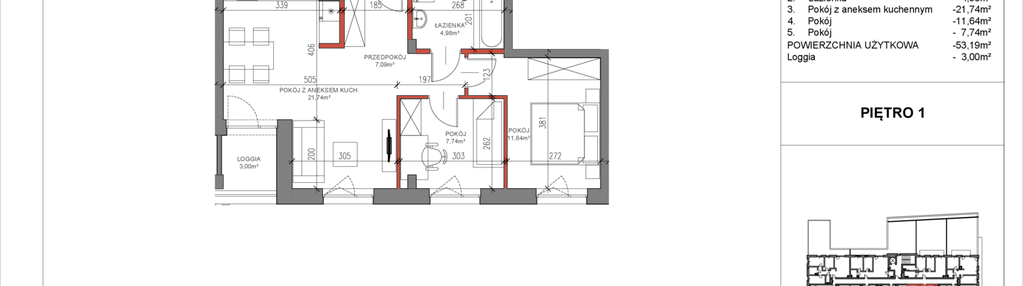
Nowe mieszkanie na sprzedaż 3 pokoje Piaseczno, 53,19 m2, 1 piętro - nr A.4
Oferta sprzedaży od Piaseczno Ancona Residence Sp. z o.o.
Piaseczno, ul. Wojska Polskiego

Główne cechy mieszkania
Ważne informacje
Mieszkanie 3 pokojowe
Dodatkowe informacje
Udogodnienia

Klimatyzacja

Usługi w budynku

Winda
Inwestycja
Piaseczno Residence
mazowieckie, piaseczyński, Piaseczno
Piaseczno Residence to nowoczesna i kameralna inwestycja mieszkaniowa, wyróżniająca się elegancką, minimalistyczną architekturą oraz wyjątkowo przemyślanym układem przestrzeni. Czterokondygnacyjny budynek został zaprojektowany z dbałością o detale i funkcjonalność, tworząc miejsce idealne do komfortowego, miejskiego życia. Projekt łączy jasną, ponadczasową kolorystykę elewacji z subtelnymi akcentami z cegły i szkła, dzięki czemu budynek harmonijnie wpisuje się w otoczenie. Szerokie przeszklenia, nowoczesne balustrady i naturalna zieleń nadają inwestycji lekkości i współczesnego charakteru.
Dostępne mieszkania w tej inwestycji
| Nazwa | Rzut | Pokoje | Powierzchnia | Piętro | Cena | Status |