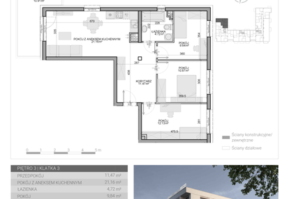
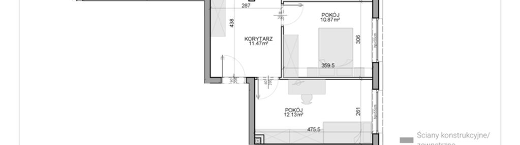
Nowe mieszkanie na sprzedaż 4 pokoje Pisz, 69,43 m2, 3 piętro - nr M-58
Oferta sprzedaży od Rutkowski Development Sp. J.
Pisz, ul. Słubicka

Główne cechy mieszkania
Ważne informacje
Mieszkanie 4 pokojowe
Dodatkowe informacje
Udogodnienia

Plac zabaw

Patio / Dziedziniec

Pomieszczenie rekreacyjne

Winda
Przyroda

Jezioro

Las

Park
Inwestycja
Osiedle Radosne
warmińsko-mazurskie, piski, Pisz
OSIEDLE RADOSNE W Piszu przy ul. Słubickiej powstaje kameralne Osiedle Radosne. Pięknie zaaranżowane części wspólne z możliwością wypoczynku na świeżym powietrzu, ponadczasowa architektura i zaaranżowana przez architekta zieleń sprawią, ze każdy będzie czuł się tu dobrze. Bajkowy plac zabaw to świetne miejsce rozrywki dla dzieci, ale również i rozwoju najmłodszych mieszkańców. Umiejscowiony został w samym sercu osiedla – tworząc beztroską i bezpieczną przestrzeń. SPRAWDŹ STANDARD Jasna elewacja, kameralny dziedziniec i panoramiczne przeszklenia to wizytówka osiedla. W ofercie znajduje się szeroki wybór metraży od 34 m² do ponad 70 m², stanowiąc doskonałą propozycję zarówno dla singli, jak i rodzin lub pod zakup inwestycyjny. Przestronne balkony, prywatne, parterowe tarasy, charakterystyczne dla budownictwa Rutkowski Development, zapewnią dodatkową przestrzeń do spędzania wolnego czasu. DOSKONAŁOŚĆ TKWI W SZCZEGÓŁACH • bajkowy plac zabaw • prywatne parterowe ogrody • kids room • kameralny dziedziniec • reprezentacyjne części wspólne • windy • hala garażowa • miejsca postojowe zewnętrzne • komórki lokatorskie do każdego mieszkania • wideodomofony • drzwi wejściowe antywłamaniowe *W OSTATNIĄ SOBOTĘ MIESIĄCA WSZYSTKIE BIURA SPRZEDAŻY SĄ OTWARTE W GODZINACH 9-14. ZAPRASZAMY!*
Dostępne mieszkania w tej inwestycji
| Nazwa | Rzut | Pokoje | Powierzchnia | Piętro | Cena | Status |