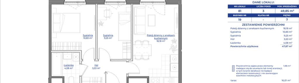
Nowe mieszkanie na sprzedaż 3 pokoje Poznań Nowe Miasto, 47,87 m2, 7 piętro - nr 19.81
Oferta sprzedaży od Spravia
RezerwacjaPoznań, Nowe Miasto, Starołęka-Minikowo-Marlewo, ul. Wagrowska 19 (4km od centrum Poznania)

Główne cechy mieszkania
Ważne informacje
Mieszkanie 3 pokojowe
Dodatkowe informacje
Udogodnienia

Rowerownia

Winda

Plac zabaw
Przyroda

Park
Inwestycja
Osiedle przy Unii etap III
wielkopolskie, Poznań, Nowe Miasto, Starołęka-Minikowo-Marlewo
Osiedle Przy Unii w Poznaniu to już marka sama w sobie. Zostało zaprojektowane jako całość, dzięki czemu poszczególne etapy stworzą spójną i przyjazną przestrzeń. Kontynuacja poprzednich etapów III etap będzie nawiązywał architektonicznie i estetycznie do poprzednich zabudowań. Uniwersalne szarości, brązy i beże sprawią, że budynek będzie wyglądał elegancko mimo zmieniających się trendów. Każde z mieszkań będzie miało balkon, taras lub loggię, a lokale parterowe - zielone ogródki. Miejsca do spędzania czasu na świeżym powietrzu to nieodzowny element naszych osiedli. Bezpieczny plac zabaw pozwoli na miłe i kreatywne spędzanie czasu najmłodszym mieszkańcom. Z kolei strefa rekreacji połączy cały kwartał i będzie świetnym miejscem zarówno do relaksu, jak i sąsiedzkiej integracji. Wygodne mieszkania W dwóch 8-piętrowych budynkach powstaną 182 mieszkania o powierzchni od 36 do 69 metrów kwadratowych. Projektanci zadbali o przemyślane i funkcjonalne układy, aby łatwo można było je urządzić i komfortowo w nich mieszkać przez długie lata. Szczególnie polecamy lokale o średnim metrażu – „dwójki" z aneksami kuchennymi – idealne na pierwsze mieszkanie lub pod wynajem! Dostęp do zieleni Okolice osiedla otacza sporo zieleni. Blisko stąd do Wartostrady – trasy pieszo-rowerowej wiodącej tuż przy brzegu Warty. W pobliżu znajduje się Park Rataje z ciekawymi instalacjami, skansenem kolei oraz urozmaiconym placem zabaw. Z kolei o zieleń na osiedlu zadbają nasi architekci krajobrazu. Planujemy nasadzenia drzew, co jest możliwe dzięki temu, że hale garażowe będą zlokalizowane tylko pod budynkami, a reszta powierzchni będzie gruntem rodzimym. Do tego krzewy, trawy i byliny – pełna bioróżnorodność i tak dobrane gatunki, aby niezależnie od pór roku dziedziniec zachwycał mieszkańców i ich gości. Łatwa komunikacja w każdym kierunku W zaledwie kilka minut można dojechać samochodem do centrum handlowego, kina czy restauracji. Nowa, cicha trasa tramwajowa łączy osiedle z centrum Poznania. Mieszkańcy korzystają z kursujących co kilka minut tramwajów, by sprawnie dostać się do pracy bądź szkoły. Wygodne przystanki pozwalają na bezpośrednią przesiadkę, nie brakuje tam też miejsca na pozostawienie roweru. Zmotoryzowani docenią zaś przebudowane rondo Żegrze, które zapewnia szybki przejazd, a bliskość autostradowej obwodnicy miasta jest atutem dla często podróżujących poza granice Poznania.
Dostępne mieszkania w tej inwestycji
| Nazwa | Rzut | Pokoje | Powierzchnia | Piętro | Cena | Status |