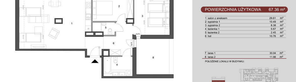
Nowe mieszkanie na sprzedaż 3 pokoje Pruszcz Gdański, 67,36 m2, 3 piętro - nr M.A.3.046
Oferta sprzedaży od NDI Development
Pruszcz Gdański, ul. Chopina

Główne cechy mieszkania
Ważne informacje
Mieszkanie 3 pokojowe
Dodatkowe informacje
Udogodnienia

Winda

Plac zabaw

Patio / Dziedziniec
Inwestycja
CUKROWNIA
pomorskie, gdański, Pruszcz Gdański
Cukrownia to projekt łączący różne funkcje miejskie w jednej, spójnej przestrzeni. Tu, na terenie dawnej Cukrowni Pruszcz z końca XIX wieku, planowana jest nowa część miasta – przemyślana, otwarta, bliska. Będziemy tu mieszkać, pracować, spotykać się i odpoczywać. Z planem. Z charakterem. Z atmosferą, która sprzyja budowaniu dobrych relacji. Serce całej inwestycji stanowić będzie zrewitalizowany budynek dawnej cukrowni – otwarty na mieszkańców, z funkcją społeczną i symboliczną. W jego sąsiedztwie zaplanowano plac miejski, który zostanie przekazany Pruszczowi Gdańskiemu jako wspólna strefa dostępna dla wszystkich. W odrestaurowanych wnętrzach dawnej cukrowni planowana jest strefa hotelowa, biurowa i gastronomiczna. W pierwszym etapie inwestycji znajduje się 100 komfortowych mieszkań w dwóch nowoczesnych budynkach. Kameralna niska zabudowa mieszkaniowo-usługowa przeplatać się będzie tu z zielenią, przestrzeniami edukacyjnymi i miejscami do odpoczynku. Terminy odbiorów: I etap – I kw. 2028 Funkcjonale mieszkania Pierwszy etap osiedla obejmuje kameralny budynek mieszkalny przy ul. Chopina. Znajdzie się tu 100 funkcjonalnych mieszkań o zróżnicowanych metrażach. Na najwyższej kondygnacji zaprojektowano poddasze z mieszkaniami o wyjątkowym charakterze – idealne dla tych, którzy cenią klimat loftowych przestrzeni. - powierzchnia od 28 mkw. do 87 mkw. - mieszkania 1-, 2-, 3-, 4-pokojowe - klimatyczne mieszkania na poddaszu - cichobieżne windy - komórki lokatorskie - hale garażowe z miejscami do ładowania aut elektrycznych Niepowtarzalny klimat i relacje sąsiedzkie Przestronne balkony i ogródki zostały zaprojektowane z myślą o przyjemnym spędzaniu czasu na co dzień. Między budynkami powstanie zielona, wspólna przestrzeń z ławeczkami – zapraszająca do sąsiedzkich spotkań i odpoczynku. Bezpieczny plac zabaw wita najmłodszych mieszkańców i zachęca do zawierania znajomości, być może na całe życie. Tutaj rodzice będą mogli umawiać się na sąsiedzkie pogawędki, mając jednocześnie swoje pociechy w pobliżu. Obok znajdują się zadaszone stojaki na rowery lub hulajnogi, gotowe do kolejnej wycieczki.
Dostępne mieszkania w tej inwestycji
| Nazwa | Rzut | Pokoje | Powierzchnia | Piętro | Cena | Status |