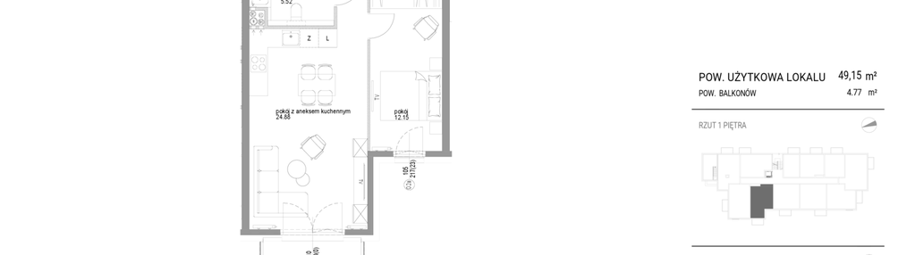
Nowe mieszkanie na sprzedaż 2 pokoje Pruszcz Gdański, 49,15 m2, 1 piętro - nr B2.18
Oferta sprzedaży od Activa AP Andrzej Pastuszka Sp. K.
Pruszcz Gdański, ul. Grunwaldzka 71B


Główne cechy mieszkania
Ważne informacje
Mieszkanie 2 pokojowe
Dodatkowe informacje
Udogodnienia

Usługi w budynku

Winda

Plac zabaw

Klimatyzacja
Przyroda

Park
Inwestycja

Kamienice Pruszczańskie
pomorskie, gdański, Pruszcz Gdański
Inwestycja Kamienice Pruszczańskie, która powstaje w Pruszczu Gdańskim przy ulicy Grunwaldzkiej 71B i 71C, to znakomita i bezkonkurencyjna lokalizacja w historycznym sercu Pruszcza Gdańskiego, nadzwyczaj blisko większości niezbędnych usług publicznych i komercyjnych, przy zachowaniu charakteru osiedla jako spokojnej enklawy. Jest to pierwsza inwestycja mieszkaniowa tak unikalna w skali miasta, historycznie inspirowana i starannie przygotowana w standardzie premium. Spójrz na mapę, a będziesz zaskoczony jak wiele spraw i potrzeb będziesz w stanie codziennie zrealizować w promieniu kilkuset metrów od domu. Szkoła, przedszkole, apteka, Urząd Miasta, restauracje, kościół, markety, studia urody, park a nawet zabytkowy młyn z doskonałą mąką. Z kolei w odległości kilometra lista możliwości staje się już tak długa, że trudno ją tu wymienić. Zwróć uwagę na świetną lokalizację dookoła której tętni życie. Kamienice Pruszczańskie będą jednak elegancką enklawą. Na naszej inwestycji powstaną 4 budynki (B1 – B4). Znajdzie się w nich 80 lokali – od kawalerek po 5-pokojowe apartamenty – których powierzchnia użytkowa wynosić będzie między 26 a 110 m², podziemny garaż z komórkami lokatorskimi i schowkami. Mieszkania na parterze będą posiadały ogródki do 167 m2. Nowa inwestycja dewelopera Activa to bezpieczeństwo wyboru i gwarancja najwyższej jakości wykonania z dbałością o najmniejsze detale. To również dbałość o zastosowanie sprawdzonych rozwiązań architektonicznych zapewniających możliwie jak największy komfort oferowanych mieszkań. Osiedle Kamice Pruszczańskie to najlepszy wybór z możliwych. Nasza inwestycja jest doskonale usytułowana pod względem komunikacyjnym: • Przystanek ZTM Gdańsk z kilkoma liniami autobusowymi oraz z bezpośrednim dojazdem do Gdańska Głównego – 300 m • Dworzec PKP Pruszcz Gdański z zamykaną wiatą na rowery – 1 km • liczne ścieżki rowerowe w najbliższej okolicy, w tym urokliwa ścieżka rowerowa wzdłuż Kanału Raduni • centrum Pruszcza Gdańskiego – 300 m • 10 minut samochodem do Obwodnicy Trójmiasta • samochodem do Głównego Miasta w Gdańsku dojedziesz w 20 minut! Atrakcyjne części wspólne: • cichobieżne windy, • hale garażowe, • miejsca postojowe zewnętrzne, • komórki lokatorskie i schowki, • przestronne klatki schodowe wykończone granitem, • plac zabaw. Standard wykończenia mieszkań z inwestycji Kamienice Pruszczańskie obejmuje m.in.: • gładź na ścianach, • 2 krotne wstępne malowanie ścian na biało, • murowane ściany działowe (nie używamy płyt GK), • okna 3-szybowe, • granitowe parapety, • balkon wykończony deską kompozytową, • zamontowany osprzęt elektryczny • klimatyzacja w pokoju dziennym • w mieszkaniach parterowych w oknach okucia RC2, klamki zamykane na kluczyk, szyby P4, ogródki z częścią tarasową i trawą z rolki Dodatki: • miejsce postojowe podziemne - od 30 000,00 zł brutto • miejsce postojowe naziemne - 28 000,00 zł brutto • komórka lokatorska - 4 500,00 zł brutto za m2 • schowek - 5 500,00 zł brutto za m2 Zapraszamy na naszą stronę internetową https://activa.pl/inwestycje/adnromeda , na której do dyspozycji Klientów mamy wyszukiwarkę 3D. Prospekt informacyjny inwestycji Antares dostępny jest na stronie internetowej dewelopera.
Dostępne mieszkania w tej inwestycji
Nazwa | Rzut | Pokoje | Powierzchnia | Piętro | Cena | Status |