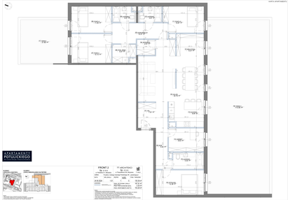
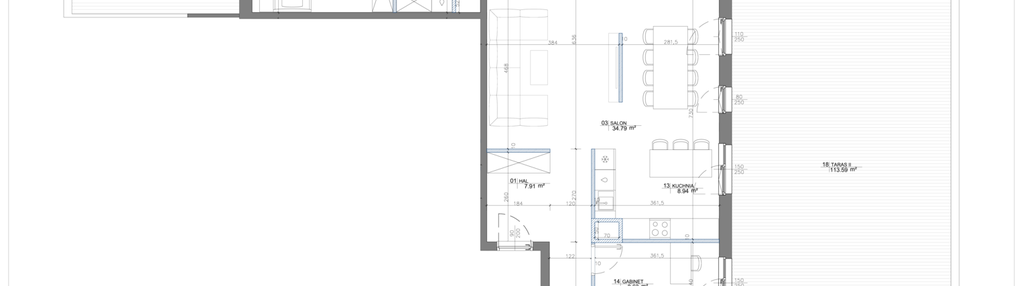
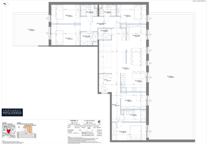
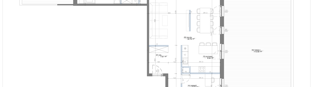
Nowe mieszkanie na sprzedaż 6 pokoi Pruszków, 153,26 m2, 1 piętro - nr 1.01
Oferta sprzedaży od Front Development
Pruszków, ul. hr. A. Potulickiego 4/6

Główne cechy mieszkania
Ważne informacje
Mieszkanie 6 pokojowe
Dodatkowe informacje
Udogodnienia

Usługi w budynku

Winda
Przyroda

Jezioro

Park
Inwestycja
Apartamenty Potulickiego
mazowieckie, pruszkowski, Pruszków
Nowoczesny Apartamentowiec przy ulicy Hrabiego Potulickiego Nowy apartamentowiec powstanie przy centralnie położonej, a jednocześnie kameralnej ulicy hrabiego Antoniego Potulickiego – patrona ulicy, który złotymi zgłoskami zapisał się w historii Pruszkowa, dokonując urbanizacji i elektryfikacji osady, a także dbając o lokalną społeczność. Sam obiekt wyróżni się oryginalną, modernistyczną bryłą oraz ceglaną elewacją, wykorzystując potencjał tej lokalizacji. Budynek wypełni nową tkanką miejską środkową część pierzei ul. Potulickiego i zwieńczy rewitalizację tej strony ulicy. Bryłę budynku projektowaliśmy dbając o optymalne nasłonecznienie położonych w nim apartamentów, następnie zadbaliśmy o wykorzystanie powstałej przestrzeni na loggie, balkony, tarasy i ogródki. W przyziemiu Apartamentów Potulickiego, aby dodatkowo wykorzystać potencjał lokalizacyjny w centrum Pruszkowa, umieszczamy lokale handlowo-usługowe (liczymy, że z pożytkiem również dla mieszkańców apartamentów). Bezpieczeństwo i wygodę zapewni mieszkańcom recepcja położona w holu budynku, a dostęp do budynku będzie dodatkowo kontrolowany poprzez system monitoringu. Aby zapewnić komfortowe parkowanie aut, aż dwie kondygnacje budynku (poziomy -2 i -1) zajmują hale garażowe, mieszczące przy 55 lokalach mieszkalnych w budynku – aż 85 miejsc parkingowych! Hale garażowe będą oczywiście skomunikowane ze wszystkim kondygnacjami mieszkalnymi apartamentowca cichobieżną windą.
Dostępne mieszkania w tej inwestycji
| Nazwa | Rzut | Pokoje | Powierzchnia | Piętro | Cena | Status |