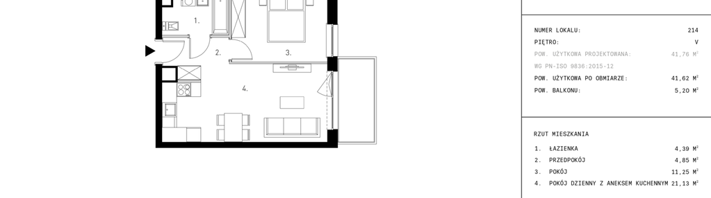
Nowe mieszkanie na sprzedaż 2 pokoje Pruszków, 41,62 m2, 5 piętro - nr 5.A33
Oferta sprzedaży od Strus Development Sp. z o.o.
Pruszków, ul. Stanisława Staszica 3

Główne cechy mieszkania
Ważne informacje
Mieszkanie 2 pokojowe
Dodatkowe informacje
Udogodnienia

Patio / Dziedziniec

Winda

Plac zabaw

Usługi w budynku
Inwestycja
Staszica 3
mazowieckie, pruszkowski, Pruszków
Inwestycja Staszica 3 to idealne miejsce dla tych, którzy poszukują funkcjonalnych rozwiązań. W szerokiej ofercie znajdują się mieszkania dla osób o różnych potrzebach: niewielkie mieszkania dla singli, przestronne układy dla rodzin, lokale z panoramicznym widokiem na IX kondygnacji, czy mieszkania z ogródkiem. Na wyniesionym dziedzińcu, z dala od ulic, zaprojektowaliśmy plac zabaw dla dzieci oraz teren zielony, który będzie doskonałym miejscem do relaksu. Dbamy o to by zarówno części wspólne, jak i mieszkania, cechowały się ergonomią użytkowania oraz wysoką jakością wykonania. Niewątpliwym atutem inwestycji jest lokalizacja oferująca bogaty wybór usług, min. centrum handlowe Nowa Stacja. Rodzice małych dzieci docenią sąsiedztwo szkoły i międzyszkolnego ośrodka sportowego, zaś osoby pracujące w Warszawie położenie w pobliżu stacji PKP Pruszków umożliwiające łatwy i szybki dojazd kolejką do Warszawy.
Dostępne mieszkania w tej inwestycji
| Nazwa | Rzut | Pokoje | Powierzchnia | Piętro | Cena | Status |