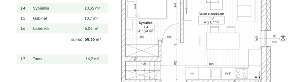
Nowe mieszkanie na sprzedaż 3 pokoje Rzeszów Załęże, 58,36 m2, parter - nr C6M11
Oferta sprzedaży od Metropolitan Development Sp. z o.o.
Rzeszów, Załęże, ul. Nefrytowa (4,9km od centrum Rzeszowa)

Główne cechy mieszkania
Ważne informacje
Mieszkanie 3 pokojowe
Inwestycja
Nefrytowa Park
podkarpackie, Rzeszów, Załęże
Nefrytowa Park - Twoje nowe miejsce w zielonej części miasta! Zamieszkaj przy ul. Nefrytowej - w miejscu, które łączy komfort nowoczesnego budownictwa z bliskością natury i udogodnień miejskich. Nefrytowa Park to kameralne osiedle zaprojektowane z myślą o funkcjonalności i komforcie życia. Nowoczesne osiedle mieszkaniowe w dzielnicy Załęże łączy bliskość natury z wygodnym dostępem do centrum miasta i głównych tras komunikacyjnych. Zaledwie kilka minut dzieli Cię od centrum Rzeszowa oraz wjazdu na trasę S19, co zapewnia szybki dojazd do ważnych punktów miasta i okolic. W sąsiedztwie znajduje się ponad 50-hektarowy las oraz liczne ścieżki spacerowe, co czyni Nefrytową Park idealnym miejscem dla osób ceniących spokój i kontakt z naturą. Przedsięwzięcie obejmuje trzy budynki - dwa pierwsze złożone z 5 segmentów, zaś trzeci z 6 segmentów o powierzchni od 58,36m2 do 72,20m2. Lokale oferują wysoki standard wykończenia stanu deweloperskiego z możliwością naniesienia zmian deweloperskich. Dodatkowe udogodnienia i wykończenie: *każde mieszkanie posiada własny ogródek lub loggię, osobne wejście oraz dwa miejsca parkingowe W CENIE, *zastosowano ogrzewanie podłogowe na całej powierzchni mieszkania, które zapewnia nie tylko komfort, ale też energooszczędność, *w cenie zostaną zamontowane dla Państwa rolety zewnętrzne na oknach. Przygotowujemy również instalację pod panele fotowoltaiczne oraz klimatyzację. Przewidziane zakończenie budowy inwestycji III kwartał 2026r. Kupujący nie płaci 2% podatku od czynności cywilno-prawnych (PCC). Zapraszam do kontaktu w celu uzyskania dokładnych informacji. https://www.nefrytowapark.pl/
Dostępne mieszkania w tej inwestycji
| Nazwa | Rzut | Pokoje | Powierzchnia | Piętro | Cena | Status |