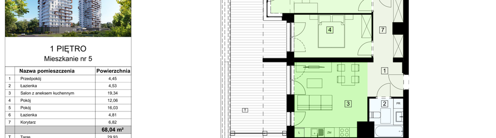
Nowe mieszkanie na sprzedaż 3 pokoje Rzeszów Słocina, 68,04 m2, 1 piętro - nr 5/B8
Oferta sprzedaży od Dzielnica Parkowa 2 Sp. z o.o.
Rzeszów, Słocina, ul. Paderewskiego (2,7km od centrum Rzeszowa)

Główne cechy mieszkania
Ważne informacje
Mieszkanie 3 pokojowe
Dodatkowe informacje
Udogodnienia

Usługi w budynku

Winda
Przyroda

Park
Inwestycja
Dzielnica Parkowa VIII
podkarpackie, Rzeszów, Słocina
Na naszym samowystarczalnym osiedlu znajdują się wszystkie najważniejsze elementy infrastruktury, które ułatwią codzienne życie. Do dyspozycji mieszkańców jest przedszkole, malowniczy park idealny na spacery i odpoczynek, piekarnia oferująca świeże wypieki każdego dnia, sklepy oraz restauracje serwujące wyśmienite posiłki. Dzielnica Parkowa to miejsce, gdzie nowoczesność spotyka funkcjonalność, zapewniając mieszkańcom komfort i wygodę na najwyższym poziomie. Tu wszystko, czego potrzebujesz, jest zawsze blisko. Zamieszkaj w wyjątkowym miejscu, które łączy nowoczesny komfort z bliskością przyrody. Osiedle zlokalizowane przy ulicy Paderewskiego w Rzeszowie graniczy z malowniczym, zabytkowym Parkiem Szafera – oazą spokoju i zieleni w sercu miasta. Park Szafera to idealne miejsce na spacery, relaks i kontakt z naturą. Znajduje się tu urokliwy staw, po którym majestatycznie pływają kaczki, tworząc sielską atmosferę, która zachwyci każdego. Bliskość parku zapewnia nie tylko piękne widoki, ale także wyjątkowe możliwości spędzania czasu na świeżym powietrzu. Wybierz życie w otoczeniu zieleni, z dostępem do pełnej infrastruktury miasta – idealne miejsce dla rodzin, osób aktywnych i wszystkich ceniących harmonię między naturą a nowoczesnością.
Dostępne mieszkania w tej inwestycji
| Nazwa | Rzut | Pokoje | Powierzchnia | Piętro | Cena | Status |