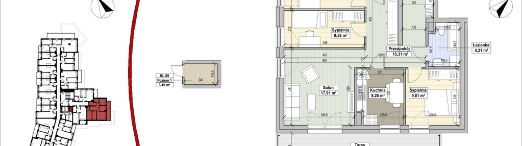
Nowe mieszkanie na sprzedaż 4 pokoje Rzeszów Staroniwa, 77,40 m2, 1 piętro - nr M10
Oferta sprzedaży od Hegra Deweloper
RezerwacjaRzeszów, Staroniwa, ul. Wywrockiego 11 (2,8km od centrum Rzeszowa)

Główne cechy mieszkania
Ważne informacje
Mieszkanie 4 pokojowe
Dodatkowe informacje
Udogodnienia

Własna kotłownia

Winda

Usługi w budynku

Inteligentny dom

Wózkarnia
Inwestycja
Apartamenty Wywrockiego 11
podkarpackie, Rzeszów, Staroniwa
“Apartamenty Wywrockiego 11” to prestiżowa inwestycja klasy PREMIUM, powstająca przy ulicy Jana Wywrockiego w Rzeszowie, nieopodal centrum miasta w spokojnej i bezpiecznej dzielnicy – Staroniwa. Okolica, w której powstają “Apartamenty Wywrockiego 11”, stanowi luksusową część Rzeszowa. Niepowtarzalny apartamentowiec powstaje z myślą o najbardziej wymagających i zamożnych Klientach. Na ostatniej kondygnacji zaprojektowano luksusowy, przestronny penthouse o powierzchni 208m2 z dużym basenem i równie imponującymi tarasami. Niezwykłość i liczne atuty tego osobliwego apartamentowca, są wynikiem działań znanej pracowni architektonicznej MWM Architekci. Zalety Inwestycji: – 7 kondygnacji o niezwykłej architekturze, – 59 apartamentów o powierzchniach od 35 do 208m2, – Przestronne tarasy do 85m2, – Wysoka jakość wykonania, – Garaż podziemny, – Ciche windy, – Bezpieczne osiedle, – Ekologiczne rozwiązania, – Pakiet antysmogowy, – Inteligentne mieszkania, – Spokojna i pełna zieleni okolica, – Tylko 2,5km do centrum miasta. Na parterze zaprojektowano 4 lokale usługowe z przeznaczeniem na cichą działalność, co z pewnością będzie stanowiło dodatkowe udogodnienie dla naszych Klientów. „Apartamenty Wywrockiego 11” to doskonałe miejsce dla osób ceniących sobie ciszę i spokój, a jednocześnie potrzebujących mieć w zasięgu ręki dostęp do pełnej infrastruktury miejskiej.
Dostępne mieszkania w tej inwestycji
| Nazwa | Rzut | Pokoje | Powierzchnia | Piętro | Cena | Status |