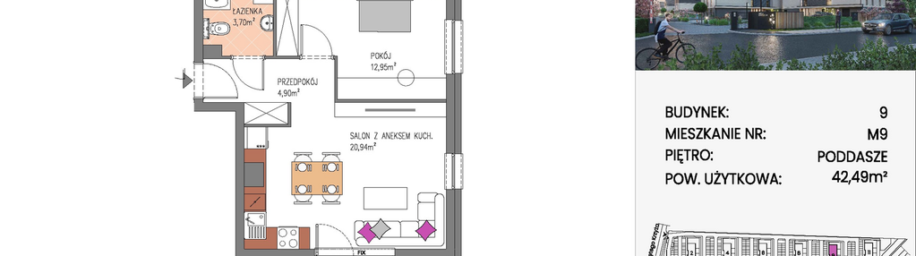
Nowe mieszkanie na sprzedaż 2 pokoje Siechnice, 42,49 m2, 2 piętro - nr Bud.9-9
Oferta sprzedaży od ATOM deweloper sp. z o.o.
RezerwacjaSiechnice, ul. Magnoliowa

Główne cechy mieszkania
Ważne informacje
Mieszkanie 2 pokojowe
Dodatkowe informacje
Udogodnienia

Plac zabaw
Inwestycja
Willa Magnolia
dolnośląskie, wrocławski, Siechnice
Willa MAGNOLIA to nazwa naszej najnowszej inwestycji zlokalizowanej przy zbiegu ulic Magnoliowej i Świętego Krzyża w Siechnicach. Jest to kontynuacja naszych poprzednich projektów w tym rejonie. Utrzymany zostanie willowy charakter budynków w niskiej 2-piętrowej zabudowie z wydzielonym placem rekreacyjnym dla dzieci i dorosłych oraz kompletnym zagospodarowaniem terenu i małą architekturą. Wybudowanych zostanie 11 budynków 2-piętrowych (9-lokalowych -budynki o numerach 1,3,5,7 i 10 oraz 12-lokalowych – budynki o numerach 2,4,6,8,9 i 11) z komórkami na tych samych kondygnacjach. W każdym budynku wielorodzinnym znajdować się będą mieszkania 2-, 3- i 4-pokojowe o pow. od 35,53 m2 do 67,55 m2. Dużym udogodnieniem dla przyszłych mieszkańców będzie przynależne do każdego lokalu 1 miejsce parkingowe na terenie posesji, pomieszczenie gospodarcze w cenie do każdego mieszkania oraz ogrodzone ogródki na parterze. Rozpoczęcie budowy III kwartał 2024 r. - Zakończenie IV kwartał 2025r. - Tylko 5 km od granic Wrocławia - Forma własności: własność - 800m do Dworca Kolejowe w Św. Katarzynie - 500m supermarket Biedronka - Bezpłatnie pomagamy klientom w uzyskaniu kredytu
Dostępne mieszkania w tej inwestycji
| Nazwa | Rzut | Pokoje | Powierzchnia | Piętro | Cena | Status |