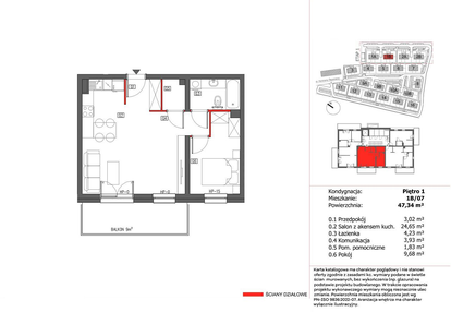
Nowe mieszkanie na sprzedaż 2 pokoje Sobótka, 47,34 m2, 1 piętro - nr 1B/07
Oferta sprzedaży od Platforma Mieszkaniowa
Sobótka, ul. Panoramy Ślężańskiej

Główne cechy mieszkania
Ważne informacje
Mieszkanie 2 pokojowe
Dodatkowe informacje
Udogodnienia

Rowerownia

Winda
Inwestycja
Panorama Ślężańska
dolnośląskie, wrocławski, Sobótka
W ramach inwestycji, w pierwszym etapie powstanie dziewięć kameralnych budynków, a w każdym tylko po 15 lub 16 mieszkań. Główne atuty inwestycji to rozwinięta okoliczna infrastruktura, wspaniały widok na masyw góry Ślęży, mądrze przemyślane parkingi z możliwością ładowania aut elektrycznych oraz garaże, komórki lokatorskie i liczne rowerownie. - zielona okolica, widok na góry - garaże podziemne - kameralne budynki
Dostępne mieszkania w tej inwestycji
| Nazwa | Rzut | Pokoje | Powierzchnia | Piętro | Cena | Status |