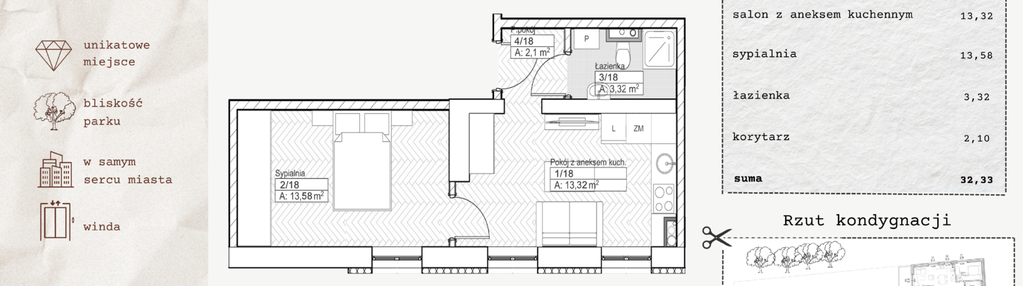
Nowe mieszkanie na sprzedaż 2 pokoje Stargard, 32,33 m2, 1 piętro - nr M18
Oferta sprzedaży od MDGM Development Sp. z o.o.
Stargard, ul. Generała Władysława Andersa 3

Główne cechy mieszkania
Ważne informacje
Mieszkanie 2 pokojowe
Dodatkowe informacje
Udogodnienia

Winda
Przyroda

Park
Inwestycja
Nowa Drukarnia
zachodniopomorskie, stargardzki, Stargard
Nowoczesna przestrzeń mieszkaniowa w Stargardzie! Dawna drukarnia, niegdyś tętniąca życiem i historiami zapisanymi na kartach, zyskuje drugie życie. Przekształcamy ją w nowoczesną przestrzeń mieszkaniową, która łączy ducha przeszłości z komfortem i funkcjonalnością współczesnej architektury. Kameralna skala – tylko 27 mieszkań na 3 kondygnacjach Mniejsza skala to dla Ciebie większy komfort i prywatność – bez anonimowości dużych bloków, z poczuciem ekskluzywności i przyjaznych relacji sąsiedzkich. Prywatne ogródki przy lokalach na parterze Dodatek, który wyróżnia Twoje mieszkanie – miejsce do relaksu, spotkań czy pracy na świeżym powietrzu, co zwiększa wartość i atrakcyjność Twojego domu. Loftowy charakter z industrialnym klimatem Cegła, stal, wysokie sufity i duże okna – Twoje mieszkanie to nie standardowy wykończony blok, ale przestrzeń z charakterem, która inspiruje i wyróżnia się na tle innych. Mieszkasz w miejscu, które ma duszę.
Dostępne mieszkania w tej inwestycji
| Nazwa | Rzut | Pokoje | Powierzchnia | Piętro | Cena | Status |