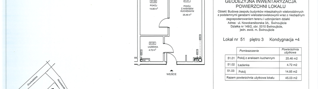
Nowe mieszkanie na sprzedaż 2 pokoje Świnoujście, 45,03 m2, 3 piętro - nr A51
Oferta sprzedaży od Arbud Mikołajczyk, Makuch Sp.k.
Świnoujście, ul. Nowokarsiborska 3 (1,6km od centrum Świnoujścia)

Główne cechy mieszkania
Ważne informacje
Mieszkanie 2 pokojowe
Dodatkowe informacje
Udogodnienia

Winda

Rowerownia

Plac zabaw
Przyroda

Las

Morze
Inwestycja
Zielona Przystań
zachodniopomorskie, Świnoujście
Zielona Przystań to nowoczesny i ekologiczny kompleks mieszkalny! Przy ulicy Nowokarsiborskiej w Świnoujściu powstaje nowoczesne osiedle mieszkalne Zielona Przystań. To wyjątkowe miejsce zostało starannie zaprojektowane, z myślą o harmonii, estetyce, funkcjonalności i otaczającej przyrodzie. Pomiędzy budynkami powstanie wewnętrzny dziedziniec otoczony zielenią, na terenie osiedla znajduje się plac zabaw dla najmłodszych mieszkańców. Z myślą o wygodzie mieszkańców, zaplanowano dostęp do naziemnych miejsc postojowych oraz miejsc parkingowych w podziemnej hali garażowej. Oferujemy dostęp do komórek lokatorskich, aby zagwarantować najwyższy poziom bezpieczeństwa dla naszych mieszkańców. Ta wyjątkowa inwestycja obejmuje trzy budynki, z mieszkaniami o 1-4 pokoi, idealnymi dla singli, par, czy rodzin, doskonałymi zarówno na stałe zamieszkanie, mieszkanie wakacyjne, jak i do wynajmu. Nasze mieszkania zostały starannie zaplanowane, z myślą o funkcjonalności oraz optymalnym nasłonecznieniu wnętrz. Standard deweloperski daje pełną swobodę w aranżowaniu przestrzeni zgodnie z własnymi potrzebami i estetyką. Każde mieszkanie posiada obszerny balkon, a na najwyższym piętrze czekają komfortowe tarasy. Dodatkowo, na parterze dostępne są lokale z urokliwymi ogródkami.
Dostępne mieszkania w tej inwestycji
| Nazwa | Rzut | Pokoje | Powierzchnia | Piętro | Cena | Status |