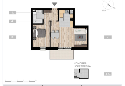
Nowe mieszkanie na sprzedaż 2 pokoje Szczytno, 48,32 m2, 4 piętro - nr 21
Oferta sprzedaży od WPB Rombud Sp. z o.o.
Szczytno, ul. Jarosława Dąbrowskiego 15

Główne cechy mieszkania
Ważne informacje
Mieszkanie 2 pokojowe
Dodatkowe informacje
Udogodnienia

Winda

Plac zabaw

Wózkarnia
Przyroda

Las

Park

Jezioro
Inwestycja
Szczytno Dąbrowskiego - etap 3
warmińsko-mazurskie, szczycieński, Szczytno
Szczytno- Dąbrowskiego to nowa inwestycja w Szczytnie. Szczytno jest historycznym miastem leżącym w południowej części Mazur. Z jednej strony otaczają je jeziora i lasy, a z drugiej strony można zwiedzać wiele zabytków m.in. zamek krzyżacki. Dlatego, aby wyjść naprzeciw wymagającym klientom zostało zaprojektowane osiedle dla osób, które marzą o spokoju, a jednocześnie cenią sobie komfort życia mieszkania w mieście. Funkcjonalny rozkład pomieszczeń zapewni komfort użytkowania przyszłym lokatorom. Wszystkie mieszkania będą posiadały balkon lub taras oraz prawie wszystkie komórki lokatorskie. W trzecim budynku ,obecnie budowanym, znajdzie się nowoczesna, cichobieżna winda. Budynek nr 3 składa się z 60 mieszkań o powierzchniach od 40,81 m2 do 73,77 m2.
Dostępne mieszkania w tej inwestycji
| Nazwa | Rzut | Pokoje | Powierzchnia | Piętro | Cena | Status |