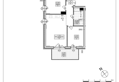
Nowe mieszkanie na sprzedaż 3 pokoje Szczytno, 51,86 m2, 1 piętro - nr A1.9
Oferta sprzedaży od Zelbo Szczytno
Szczytno, ul. Sobieszczańskiego 15B

Główne cechy mieszkania
Ważne informacje
Mieszkanie 3 pokojowe
Dodatkowe informacje
Udogodnienia

Winda

Rowerownia

Plac zabaw

Wózkarnia
Przyroda

Park
Inwestycja
Osiedle Zielone bud. A1, B8
warmińsko-mazurskie, szczycieński, Szczytno
Osiedle Zielone jest w położone w cichej i spokojnej okolicy. W sąsiedztwie znajdują się dyskonty spożywcze i usługi takie jak piekarnia, poczta oraz szpital. W ofercie kompleks posiada szeroki wybór mieszkań 2,3,4-pokojowych oraz lokale usługowe. Większość mieszkań posiada balkon lub przynależne tarasy z ogródkami. Inwestycja jest bardzo dobrze skomunikowana z centrum miasta. Jest to idealna inwestycja zarówno dla mieszkańców ceniących sobie spokój, jak i osób aktywnych. Osiedle znajduje się przy popularnej trasie rowerowej prowadzącej przez lasy Puszczy Napiwodzko-Ramuckiej.
Dostępne mieszkania w tej inwestycji
| Nazwa | Rzut | Pokoje | Powierzchnia | Piętro | Cena | Status |