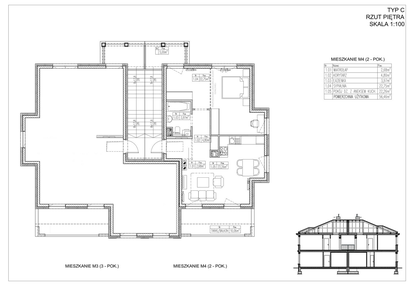
Nowe mieszkanie na sprzedaż 3 pokoje Pogórze, 56 m2, 1 piętro - nr 44.2.
Oferta sprzedaży od TS Invest Tesoro Sp. z.o.o.
pucki, Pogórze, ul. Aleja Iberyjska


Główne cechy mieszkania
Ważne informacje
Mieszkanie 3 pokojowe
Dodatkowe informacje
Udogodnienia

Plac zabaw

Patio / Dziedziniec
Przyroda

Las

Morze

Park

Staw
Inwestycja

Ogrody Tesoro VI
pomorskie, pucki, Pogórze
„Miejsce, w którym czas płynie harmonijnie” W każdej kamieniczce znajdują się cztery apartamenty, zaplanowane tak, aby zapewnić komfort mieszkańców przez całą dobę. Dwa apartamenty znajdują się na parterze, gdzie mieszkańcy mogą cieszyć się prywatnymi ogródkami, a pozostałe dwa mieszczą się na piętrze, gdzie dostępne są przestronne tarasy i poddasza. Własny park w stylu angielskim i dodatkowe udogodnienia dla mieszkańców Ponad 4,5 ha perfekcyjnie utrzymanej zieleni: trawników, klombów, drzew i krzewów. Centralnie położony staw z roślinnością wodną i fontannami, wysmakowana mała architektura, przytulne zakątki oraz malownicze kompozycje krajobrazowe z florą o niespotykanych barwach i zapachach. Mieszkańcy znajdą tu wydzielone trasy do jazdy na rolkach czy rowerach w otoczeniu pięknej zieleni. Dodatkową atrakcją dla mieszkańców i ich gości jest duży grill gazowy w stylu amerykańskim – idealny na piknik z przyjaciółmi. Teren osiedla jest w pełni ogrodzony i monitorowany. Dodatkowo dzięki mobilnej, czteropoziomowej ochronie 24h mieszkańcy mogą cieszyć się luksusowym życiem – bez obawy o swoje bezpieczeństwo. Wyjątkowa lokalizacja - Tylko 1O minut od centrum Gdyni Ogrody Tesoro to przestrzeń, która z jednej strony zapewnia ciszę, spokój i komfort, a z drugiej - umożliwia szybką i sprawną komunikację. Oferujemy również: - wyposażenie pod klucz - wsparcie Doradcy Finansowego w zakresie dostosowania najdogodniejszej formy kredytu - usługę wynajmu/sprzedaży
Dostępne mieszkania w tej inwestycji
Nazwa | Rzut | Pokoje | Powierzchnia | Piętro | Cena | Status |