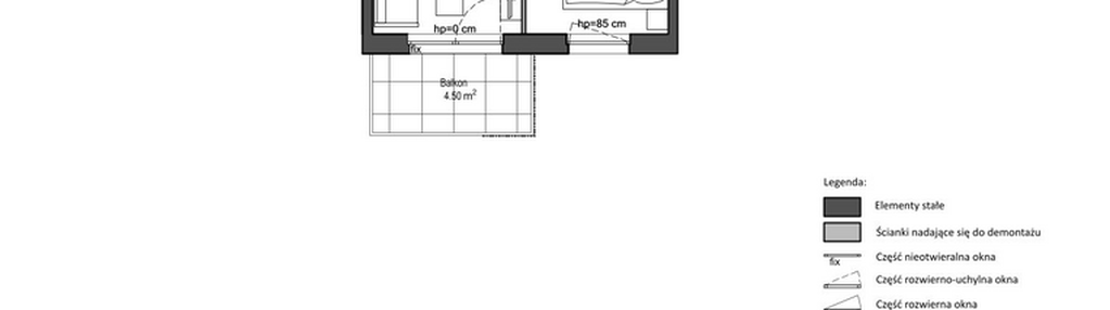
Nowe mieszkanie na sprzedaż 2 pokoje Barniewice, 32,35 m2, 1 piętro - nr E.1.13
Oferta sprzedaży od Makurat Invest Sp. z o.o.
kartuski, Barniewice, ul. Aroniowa

Główne cechy mieszkania
Ważne informacje
Mieszkanie 2 pokojowe
Dodatkowe informacje
Udogodnienia

Boisko

Plac zabaw

Rowerownia
Inwestycja
Nowy Świat Ostoja etap II - EFG
pomorskie, kartuski, Barniewice
Ostoja dla Ciebie i Twoich najbliższych W ramach drugiego etapu rozbudowy osiedla powstanie siedem budynków, w których znajdzie się łącznie 226 mieszkań o różnorodnych układach i metrażach. Oferta obejmuje zarówno kompaktowe mieszkania 2 oraz 3-pokojowe, jak i przestronne mieszkania 4-pokojowe. Dwa budynki położone najbliżej ulicy będą dodatkowo posiadały siedem lokali usługowych. W projekcie budynków uwzględniono komórki lokatorskie, windy oraz rowerownie. Dla rekreacji i aktywności na świeżym powietrzu, planowane jest utworzenie boiska sportowego oraz dużego, wielofunkcyjnego placu zabaw. Mieszkańcy będą mieli do dyspozycji miejsca postojowe w halach garażowych, a także liczne ogólnodostępne miejsca postojowe na zewnątrz. Łącznie przewidziano 307 takich miejsc. Dodatkowym atutem będą stanowiska do ładowania pojazdów elektrycznych, co zwiększy komfort i wygodę użytkowników osiedla.
Dostępne mieszkania w tej inwestycji
| Nazwa | Rzut | Pokoje | Powierzchnia | Piętro | Cena | Status |