Nowy mieszkanie na sprzedaż 4 pokoje Walendów, 85,17 m2, parter - nr 172B
Oferta sprzedaży od Novisa Development Sp. z o.o.
pruszkowski, Walendów, ul. Brzozowa

Główne cechy mieszkania
Opis nieruchomości o powierzchni 85,17 m2
Mieszkanie w inwestycji: Arkady Walendów etap 3 i 4
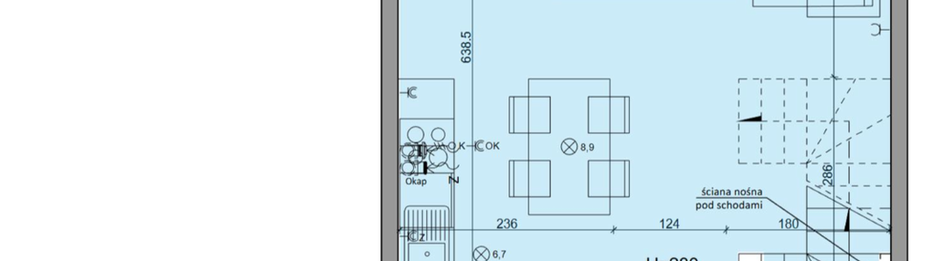
Ten 85-metrowy dom, położony w przedniej części osiedla, to doskonała propozycja dla osób, które cenią sobie przyjemny chłód w ogrodzie, dający wytchnienie nawet w najbardziej upalne dni. Na parterze znajduje się duży salon z aneksem kuchennym i wyjściem do ogrodu, a także praktyczne WC oraz hall z miejscem na małą garderobę. Piętro oferuje trzy sypialnie - z ekspozycją północną i południową - oraz wygodną, ustawną łazienkę. To idealny dom dla rodziny, która szuka komfortu i spokoju na co dzień.
Ważne informacje
Mieszkanie 4 pokojowe
Dodatkowe informacje
Udogodnienia

Usługi concierge

Plac zabaw
Przyroda

Jezioro

Park

Las

Rezerwat przyrody
Inwestycja
Arkady Walendów etap 3 i 4
mazowieckie, pruszkowski, Walendów
Arkady Walendów – miejsce, w którym żyje się inaczej Zaledwie 15 minut od Warszawy, a jednak w zupełnie innym świecie – zielonym, spokojnym, sprzyjającym rodzinie. Arkady Walendów to osiedle 416 domów jednorodzinnych – bliźniaczych, szeregowych i wolnostojących – o powierzchni łącznej od 86 do 149 m². Każdy dom ma prywatny ogród (27–751 m²), duże okna i funkcjonalny układ: przestronny salon z kuchnią na dole, sypialnie na piętrze, w części domów także gabinet. Architektura osiedla łączy prostotę i elegancję – białe elewacje z cegłą, szare dachy i detale w kolorze drewna nadają inwestycji ponadczasowy charakter. W centrum powstaje zielona strefa rekreacyjna, a całość uzupełniają szerokie alejki, portiernia z kontrolą dostępu i starannie zaprojektowana zieleń. Arkady Walendów to luksus, który czuje się na co dzień – bez afiszowania, za to z myślą o komforcie i harmonii życia. Skorzystaj z Rodzinnego Kredytu Mieszkaniowego i kup dom w inwestycji Arkady Walendów z minimalnym wkładem własnym – już ok. 20–30 tys. zł. Jeśli posiadasz zdolność kredytową, brakujący wkład może zostać objęty gwarancją BKG. To rozwiązanie szczególnie korzystne dla rodzin i osób planujących przyszłość – w ramach programu, po narodzinach kolejnego dziecka, możliwa jest spłata części kredytu przez państwo (tzw. spłata rodzinna), która może sięgnąć nawet 60 000 zł. W połączeniu z atrakcyjną ceną domów, funkcjonalnymi układami 4-6-pokojowymi oraz lokalizacją sprzyjającą codziennemu życiu, program RKM sprawia, że zakup nieruchomości w tej inwestycji jest dziś znacznie łatwiejszy, niż mogłoby się wydawać. Chcesz sprawdzić, jak to wygląda w praktyce przy konkretnym domu? Zostaw kontakt – oddzwonimy i przeprowadzimy Cię przez cały proces.
Dostępne domy w tej inwestycji
| Nazwa | Rzut | Pokoje | Powierzchnia | Piętra | Cena | Status |