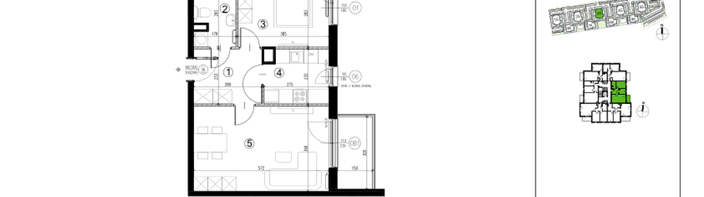
Nowe mieszkanie na sprzedaż 2 pokoje Zamienie, 48,17 m2, 1 piętro - nr 3G.58
Oferta sprzedaży od White Stone Development sp. z o.o.
piaseczyński, Zamienie, ul. Czekoladowa


Główne cechy mieszkania
Ważne informacje
Mieszkanie 2 pokojowe
Dodatkowe informacje
Udogodnienia

Plac zabaw

Winda
Inwestycja

Zielone Zamienie IX
mazowieckie, piaseczyński, Zamienie
Żyj bezpiecznie i komfortowo! Zielone Zamienie IX to kolejny etap cieszącej się dużym zainteresowaniem inwestycji, która tworzy przestronne osiedle nowoczesnych, kameralnych budynków wielorodzinnych o ciekawej architekturze. To wyjątkowe i klimatyczne miejsce zlokalizowane jest w miejscowości Zamienie (gmina Lesznowola), przy ul. Czekoladowej. Na aktualny, IX etap inwestycji składa się 196 mieszkań w dziewięciu trzypiętrowych budynkach. Dużym atutem inwestycji są jasne wnętrza z dużą ilością naturalnego światła, a także duże balkony i wygodne ogródki z zachowanym starodrzewem, o powierzchni do 170 m². Ogromną zaletą jest możliwość kreowania przez mieszkańców zieleni we własnym otoczeniu. Inwestycja wyposażona jest w miejsca parkingowe przed budynkami. Do każdego mieszkania przypada jedno miejsce parkingowe w cenie! Na ogrodzonym terenie osiedla zaprojektowano miejsca do odpoczynku oraz bezpieczne place zabaw dla dzieci. Po sąsiedzku znajduje się nowoczesna szkoła, przedszkole oraz obiekty usługowo-handlowe i sportowe.
Dostępne mieszkania w tej inwestycji
| Nazwa | Rzut | Pokoje | Powierzchnia | Piętro | Cena | Status |