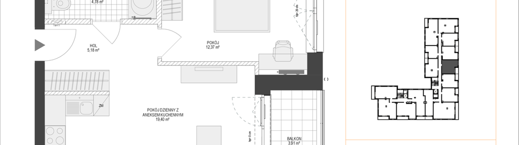
Nowe mieszkanie na sprzedaż 2 pokoje Pogórze, 41,73 m2, 1 piętro - nr C8.23
Oferta sprzedaży od Euro Styl S.A.
pucki, Pogórze, ul. Ignacego Jana Paderewskiego

Główne cechy mieszkania
Ważne informacje
Mieszkanie 2 pokojowe
Dodatkowe informacje
Udogodnienia

Rowerownia

Winda

Wózkarnia

Plac zabaw
Przyroda

Morze

Las
Inwestycja
Konstelacja etap IV
pomorskie, pucki, Pogórze
Konstelacja to inwestycja w podwyższonym standardzie, która łączy w sobie nowoczesność, wysoką jakość oraz niepowtarzalny klimat nawiązujący do gwiazd i marynistyki. Nawiązuje swoim charakterem do modernistycznej architektury Gdyni. To doskonałe miejsce do życia w malowniczej, nadmorskiej okolicy. FUNKCJONALNE MIESZKANIA Konstelację tworzą kameralne budynki o 3-piętrowej zabudowie. W każdym z nich znajdują się przestronne mieszkania o zróżnicowanych metrażach i ponadstandardowej wysokości (275 cm). Do mieszkań na parterze przynależą prywatne ogródki, a w pozostałych znajdują się przestronne balkony. Wyjścia na balkon są bezprogowe, co podnosi komfort użytkowania oraz ułatwia montaż i wykończenie podłóg. ATRAKCYJNA LOKALIZACJA Konstelacja powstaje zaledwie 8 km od centrum Gdyni czy Rumi, gdzie łatwo można dojechać autem lub kominikacją miejską. Pogórze jest także objęte planami rozbudowy linii Północnej Kolei Aglomeracyjnej, której przystanek powstanie niedaleko osiedla. BLISKO NATURY Wyjątkowa lokalizacja daje wiele możliwości spędzania czasu w otoczeniu natury. Jedną z atrakcji jest bezpośrednie sąsiedztwo urokliwego, brzozowego lasku. Jedynie kilkanaście minut dzieli nas od turystycznych miejscowości – Rewy czy Mechelinek, a pobliska infrastruktura handlowo-usługowa (m.in. Galeria Szperk) zapewnia komfort codziennego życia. ATRAKCJE NA OSIEDLU Ciekawie zaaranżowane przestrzenie wspólne sprzyjają sąsiedzkiej integracji i aktywności na świeżym powietrzu. Wyjątkowy charakter Konstelacji przejawia się chociażby w postaci alejek stylizowanych na kształt gwiazdozbiorów. Nasz wzrok przykują także inne unikatowe elementy architektoniczne m.in. zegar słoneczny, zabawki marynistyczne dla dzieci czy ścianka wspinaczkowa w kształcie półkuli z mapą gwiazd. EKOLOGIA Konstelacja została stworzona w duchu zrównoważonego rozwoju. Na osiedlu zastosowano m.in. panele fotowoltaiczne, które pozwolą obniżyć rachunki za prąd w częściach wspólnych, ogrody deszczowe, a ścieżki żwirowe zostały zaprojektowane tak, by zwiększać przepuszczalność wody. Z kolei rowerownie, stojaki rowerowe czy gniazda do ładowania aut elektrycznych przy wybranych miejscach w halach garażowych wspierają trend ekomobilności. ARCHITEKTURA Jasne elewacje budynków są zaprojektowane w ponadczasowym stylu tworzą przyjazny i ciepły klimat. Odległości między budynkami zapewnią mieszkańcom poczucie kameralności i prywatności. Uzupełnieniem nowoczesnego projektu są atrakcyjne, pełne zieleni strefy wspólne.
Dostępne mieszkania w tej inwestycji
| Nazwa | Rzut | Pokoje | Powierzchnia | Piętro | Cena | Status |