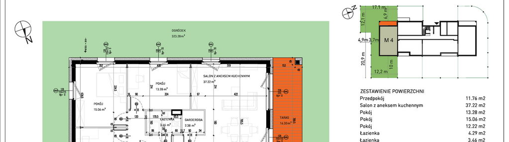
Nowe mieszkanie na sprzedaż 4 pokoje Bielany Wrocławskie, 99,67 m2, parter - nr II.4
Oferta sprzedaży od KD Developer Sp. z o.o.
wrocławski, Bielany Wrocławskie, ul. Kolejowa 5

Główne cechy mieszkania
Ważne informacje
Mieszkanie 4 pokojowe
Dodatkowe informacje
Udogodnienia

Wózkarnia

Winda

Plac zabaw

Rowerownia
Przyroda

Park
Inwestycja
Fokus Bielany
dolnośląskie, wrocławski, Bielany Wrocławskie
Prestiżowa lokalizacja na Bielanach Wrocławskich Zapraszamy do odkrycia nowego wymiaru komfortu i prestiżu w naszej najnowszej inwestycji deweloperskiej, zlokalizowanej przy ulicy Kolejowej 5 na Bielanach Wrocławskich. Kameralna lokalizacja, z dala od miejskiego zgiełku, oferująca jednocześnie wszystko, czego oczekujesz od współczesnych udogodnień. Sąsiedztwo przyjaznej zabudowy domków jednorodzinnych nadaje okolicy uroczy, przytulny charakter. Wysmakowana estetyka i ponadczasowa architektura Fokus Bielany to osiedle, które łączy w sobie wysmakowaną estetykę, wysoką jakość wykonania oraz funkcjonalne rozwiązania architektoniczne. Elewacja utrzymana w stonowanej, beżowej kolorystyce podkreśla ponadczasową stylistykę obiektów. Przemyślane detale, takie jak delikatne przeszklone balustrady balkonowe czy neutralna stolarka okienna budują atmosferę luksusu i wizualnej lekkości. Duże okna zapewniają znakomite doświetlenie wnętrz, jednocześnie akcentując przestronność apartamentów i ich harmonijne połączenie z otoczeniem. Spokój i wygoda z dostępem do miasta To miejsce, które oferuje przyszłym mieszkańcom komfort życia w spokojnym otoczeniu, z jednoczesnym dostępem do rozbudowanej infrastruktury miejskiej i doskonałym skomunikowaniem z Wrocławiem. Nowoczesna inwestycja mieszkaniowa Inwestycja obejmuje zespół 4 nowoczesnych budynków mieszkalnych, liczących po cztery kondygnacje naziemne wraz z garażami podziemnymi na poziomie -1. W ramach projektu powstanie łącznie 94 funkcjonalnych lokali, zaprojektowanych z myślą o komforcie i codziennej wygodzie mieszkańców. Przemyślane mieszkania dla każdego Każde mieszkanie to przemyślana przestrzeń – idealna zarówno dla rodzin, par, jak i osób poszukujących własnego M czy też pragnących dobrze ulokować kapitał. Budynki wyróżniają się nowoczesną architekturą i wysokim standardem wykończenia części wspólnych. Wspólna przestrzeń sprzyjająca relacjom Fokus Bielany to inwestycja zaprojektowana z myślą o wygodzie i wysokiej jakości życia mieszkańców. Przestrzeń wspólna została starannie przemyślana. Dodatkowym atutem jest wewnętrzny teren rekreacyjny, sprzyjający tworzeniu się społeczności lokalnych, gdyż wtedy życie staje się przyjemniejsze, ciekawsze i bezpieczne.
Dostępne mieszkania w tej inwestycji
| Nazwa | Rzut | Pokoje | Powierzchnia | Piętro | Cena | Status |