Nowy mieszkanie na sprzedaż 6 pokoi Jazgarzewszczyzna, 149,53 m2, parter - nr 5A
Oferta sprzedaży od Novisa Development Sp. z o.o.
piaseczyński, Jazgarzewszczyzna, ul. Krzywa

Główne cechy mieszkania
Opis nieruchomości o powierzchni 149,53 m2
Mieszkanie w inwestycji: Wille przy Lesie
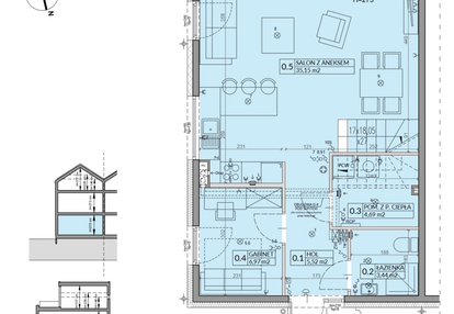
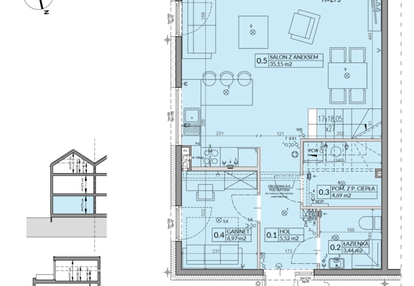
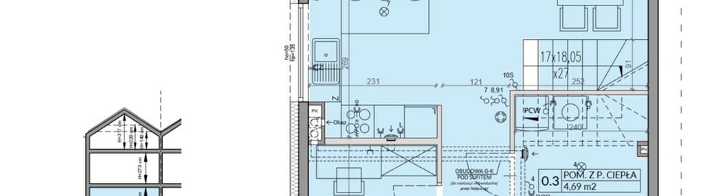
6-pokojowy dom z tarasem to oferta dla najbardziej wymagających. Na parter składa się duży salon z aneksem kuchennym i jadalnią, gabinet oraz łazienka. Doskonale doświetlony, południowy ogród to miejsce do zabawy i odpoczynku dla całej rodziny. Piętro i poddasze zaprojektowano jako strefę prywatną domowników. Są tu 3 sypialnie, 2 prywatne garderoby i 2 łazienki - jedna w master bedroom oraz jedna ogólnodostępna. Wyżej mamy przestronny pokój z wyjściem na prywatny taras z ekspozycją południową.
Ważne informacje
Mieszkanie 6 pokojowe
Inwestycja
Wille przy Lesie
mazowieckie, piaseczyński, Jazgarzewszczyzna
Dom w sercu lasu Wille przy Lesie to ekskluzywna inwestycja położona w malowniczej Jazgarzewszczyźnie. Tutaj, w sąsiedztwie lasu i parków, odnajdziesz spokój ducha. Osiedle składa się z 28 nowoczesnych, 6-pokojowych domów wolnostojących o powierzchni od 138 do 144 m². Zostało zaprojektowane z myślą o wymagających klientach — to miejsce dla tych, którzy naprawdę potrzebują przestrzeni. Przestronne, jasne wnętrza, prywatne ogrody sięgające nawet 336 m² oraz duże (do 16 m²) tarasy na dachu, z których roztacza się widok na otaczającą przyrodę, to definicja wygody i luksusu. Wysokie pomieszczenia zapewniają niesamowite poczucie przestrzeni, a pompa ciepła oraz ekologiczne rozwiązania technologiczne odpowiadają na potrzeby współczesnych, świadomych ekologicznie klientów. Ogrzewanie podłogowe w całym domu gwarantuje komfort cieplny i minimalizuje zużycie energii. Każdy dom to trzy kondygnacje starannie zaprojektowanej przestrzeni, zapewniającej wygodę i prywatność. Na parterze dominuje przestronny salon połączony z aneksem kuchennym i jadalnią, który jest sercem domu, idealnym miejscem do wspólnych chwil i spotkań. Na tej kondygnacji znajduje się również kameralny gabinet do pracy w domu oraz łazienka dla gości. Piętro stanowi strefę prywatną — to łazienka i sypialnie, część z własną garderobą i drugą łazienką. Poddasze to wyjątkowa przestrzeń — doskonale doświetlony pokój z dużymi oknami i wyjściem na prywatny taras na dachu. To miejsce, które może pełnić funkcję drugiego salonu, pokoju gościnnego czy rekreacyjnego (np. siłowni). Budynek charakteryzuje się prostymi, minimalistycznymi bryłami, które emanują elegancją i funkcjonalnością. Część z nich została pokryta białym tynkiem, podczas gdy inne wyróżniają się elewacją z okładziny w formie cegły klinkierowej, co nadaje im klasyczny, a jednocześnie nowoczesny charakter. Szarości dominują w oprawie budynków – od drzwi i balustrad na tarasie, przez okna, aż po pergole w strefie wejściowej. Dachy oraz część ścian na trzeciej kondygnacji również utrzymane są w odcieniu ciepłej szarości, co tworzy spójną i harmonijną kompozycję. Tarasy są zwrócone w różne strony, zapewniając mieszkańcom większą prywatność i intymność podczas rodzinnych posiłków czy wieczorów spędzonych w blasku zachodzącego słońca. Wybierz się razem z nami na spacer 3D https://youtu.be/39yRlnuTqxc?si=w_MN6rxOoARPVBZ-
Dostępne domy w tej inwestycji
| Nazwa | Rzut | Pokoje | Powierzchnia | Piętra | Cena | Status |