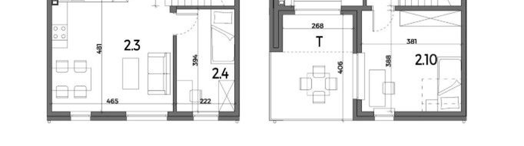
Nowe mieszkanie na sprzedaż 4 pokoje Iwiny, 89,53 m2, parter - nr A1-2
Oferta sprzedaży od Platforma Mieszkaniowa
wrocławski, Iwiny, ul. Miodowa

Główne cechy mieszkania
Ważne informacje
Mieszkanie 4 pokojowe
Dodatkowe informacje
Udogodnienia

Plac zabaw
Przyroda

Park
Inwestycja
Aleja Miodowa
dolnośląskie, wrocławski, Iwiny
Apartamenty przy Miodowej Alei to kameralna i rodzinna inwestycja. Osiedle tworzyć będą 4 szeregi budynków o niskiej zabudowie. Proste i estetyczne bryły zwieńczą dachy dwuspadowe z lukarnami. Budynki utrzymane w jasnej tonacji z ekologicznymi akcentacji, harmonijnie wkomponują się w otoczenie. Aby zapewnić komfort i bezpieczeństwo Mieszkańców, teren osiedla będzie ogrodzony oraz monitorowany. Kontrolowany dostęp zapewni brama z furtką wraz z wideodomofonem. Z przestrzennych dwupoziomowych mieszkań rozciągać się będzie widok na panoramę Wrocławia, sprawiając, że inwestycja ma swój unikatowy charakter. Zakończenie budowy Inwestycji przywidujemy na II kwartał 2025r..
Dostępne mieszkania w tej inwestycji
| Nazwa | Rzut | Pokoje | Powierzchnia | Piętro | Cena | Status |