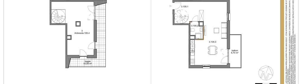
Nowe mieszkanie na sprzedaż 2 pokoje Dawidy Bankowe, 80,81 m2, 3 piętro - nr 105
Oferta sprzedaży od KG Group Sp. z o.o.
pruszkowski, Dawidy Bankowe, ul. Oleńki 14

Główne cechy mieszkania
Ważne informacje
Mieszkanie 2 pokojowe
Dodatkowe informacje
Udogodnienia

Plac zabaw

Rowerownia

Winda
Inwestycja
Osiedle Sfera etap II
mazowieckie, pruszkowski, Dawidy Bankowe
Osiedle Sfera to nowoczesna inwestycja mieszkaniowa położona w podwarszawskich Dawidach Bankowych stanowiąca połączenie estetyki z funkcjonalnością. Dzięki temu Mieszkańcy mogą cieszyć się nie tylko pięknymi, ale i przemyślanymi do najmniejszego szczegółu wnętrzami, które zapewniają wygodę i komfort na co dzień. Lokalizacja w cichej i spokojnej okolicy Dawidów Bankowych jest jednym z jej największych atutów. Bliskość Warszawy, zaledwie kilkanaście minut drogi samochodem lub transportem publicznym, sprawia, że jest to idealne miejsce dla osób pracujących w stolicy, pragnących jednocześnie uciec od miejskiego zgiełku i cieszyć się spokojem własnego domu Osiedle Sfera to inwestycja, która łączy w sobie wszystko, co najlepsze – doskonałą lokalizację, nowoczesność, elegancję oraz wysoki komfort życia.
Dostępne mieszkania w tej inwestycji
| Nazwa | Rzut | Pokoje | Powierzchnia | Piętro | Cena | Status |