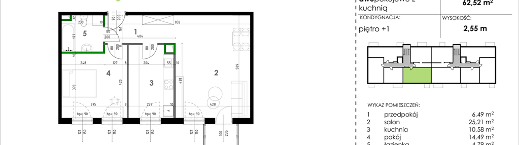
Nowe mieszkanie na sprzedaż 2 pokoje Snopków, 62,52 m2, 1 piętro - nr 26.B8
Oferta sprzedaży od Centrum Zana G. Turski M. Balcerek Sp. K.
Rezerwacjalubelski, Snopków, ul. Parkowa

Główne cechy mieszkania
Ważne informacje
Mieszkanie 2 pokojowe
Dodatkowe informacje
Udogodnienia

Winda

Plac zabaw
Przyroda

Jezioro

Park
Inwestycja
Snopków Park
lubelskie, lubelski, Snopków
Doskonała lokalizacja Snopków Park to najnowsza inwestycja Centrum Zana. Inwestycja usytuowana zaledwie 4 km od Lublina, w malowniczej okolicy, otoczona leśnymi wąwozami, w bliskiej odległości od Parku Pałacowego i pięknych stawów. Osiedle jest idealnie skomunikowane, znajduje się 200 m od pętli autobusowej oraz 1,5 km od obwodnicy Lublina. Nowoczesna Architektura Budynki zaprojektowano jako proste bryły, z jasną elewacją i elementami dekoracyjnymi w kolorze naturalnego drewna. Minimalistyczny styl architektury we współczesnej odsłonie sprawia, że osiedle idealnie wpisuje się w Obszar Chronionego Krajobrazu „Dolina Ciemięgi”. Mieszkania dla Każdego W ramach inwestycji zaprojektowano komfortowe 2, 3 i 4-pokojowe mieszkania o powierzchni od 35 do 76 m2, każde z balkonem. Wszystkie budynki są przystosowane dla osób niepełnosprawnych. Dla dzieci przewidziano duży plac zabaw pośrodku osiedla.
Dostępne mieszkania w tej inwestycji
| Nazwa | Rzut | Pokoje | Powierzchnia | Piętro | Cena | Status |